Luminosité Structurée : L’Éloquence Architecturale de la Rue Alexandre Dumas
Ce projet de réalisation d’un immeuble de logements, situé rue Alexandre Dumas dans le 11ᵉ arrondissement de Paris, témoigne d’une articulation subtile entre contextualisme architectural et sémiologie, où chaque choix de conception dialogue avec un environnement chargé d’histoire. Dessiné par Moonarchitectures, avec la collaboration de Studio HB Architecture dans le cadre d’une mission « implémentation after third party architecture design » pour le fonds d’investissement Pierre 1er de gestion, le projet se développe au cœur d’une copropriété horizontale atypique. Composée de maisons de faible hauteur et organisée autour d’une rue pavée, cette copropriété a vu son équilibre repensé grâce à la démolition d’un garage central, remplacé par un immeuble contemporain respectueux du cadre bâti environnant.
Ancré dans un quartier dense et vivant, le projet devait intégrer une nouvelle construction sans altérer l’identité existante. L’organisation en copropriété horizontale et les maisons pavillonnaires dictaient une approche mesurée, où l’immeuble s’insère discrètement, préservant l’intimité et l’atmosphère conviviale des lieux. La démolition du garage a libéré un espace stratégique pour ériger un bâtiment affirmant une modernité contrôlée, tout en dialoguant visuellement et spatialement avec son contexte.
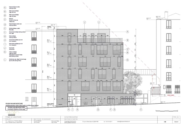
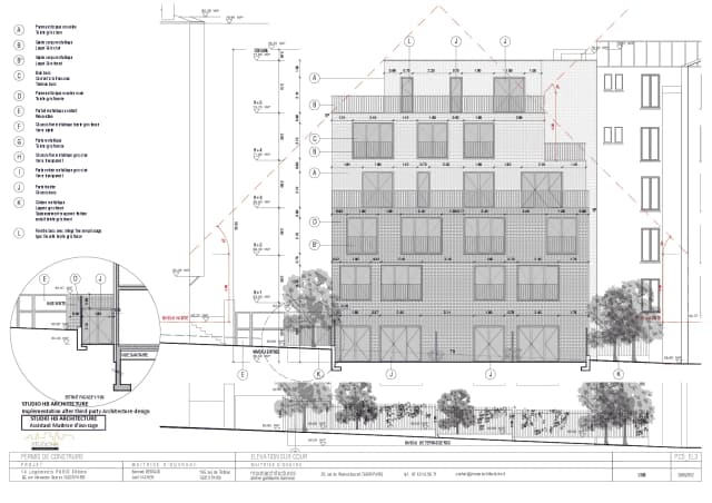
L’immeuble repose sur une structure en béton et s’habille d’une façade en briques grises doublée d’une isolation thermique par l’extérieur. Les menuiseries en aluminium blanc, encadrées de métal blanc, ponctuent les façades, créant des percées lumineuses et des rythmes graphiques qui contrastent avec la rugosité texturée de la brique. Ce contraste visuel renforce l’identité du bâtiment, mêlant robustesse matérielle et légèreté lumineuse. Chaque ouverture devient une composante esthétique essentielle, soulignant l’équilibre entre la matière brute et la lumière naturelle.
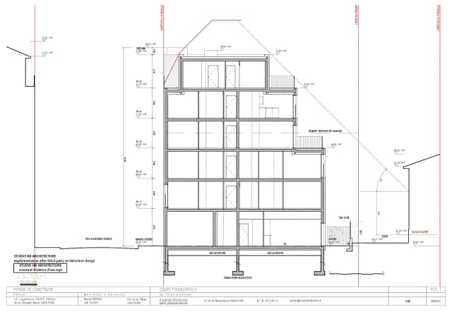
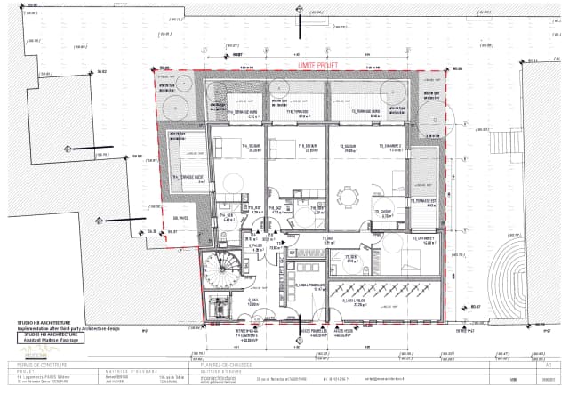
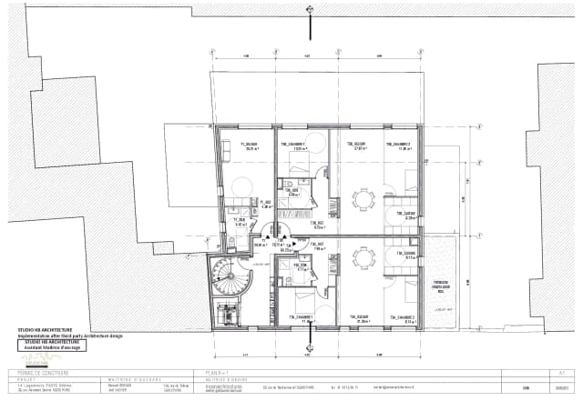
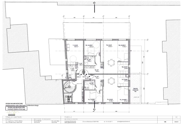
Organisé sur plusieurs niveaux, l’immeuble offre une diversité d’espaces pensés pour maximiser le confort et la fonctionnalité. Au rez-de-chaussée, les espaces communs s’articulent autour d’une entrée élégante, reliant la rue pavée au cœur du bâtiment. Ces espaces, habillés de béton ciré et de bois clair, instaurent une ambiance chaleureuse et contemporaine pour les résidents. Les étages intermédiaires accueillent des appartements standards, où la lumière naturelle s’invite généreusement grâce aux ouvertures encadrées en métal blanc. Les intérieurs, traités avec des matériaux tels que le parquet massif et des finitions modernes, privilégient des tons neutres pour offrir une base intemporelle à la personnalisation des résidents.
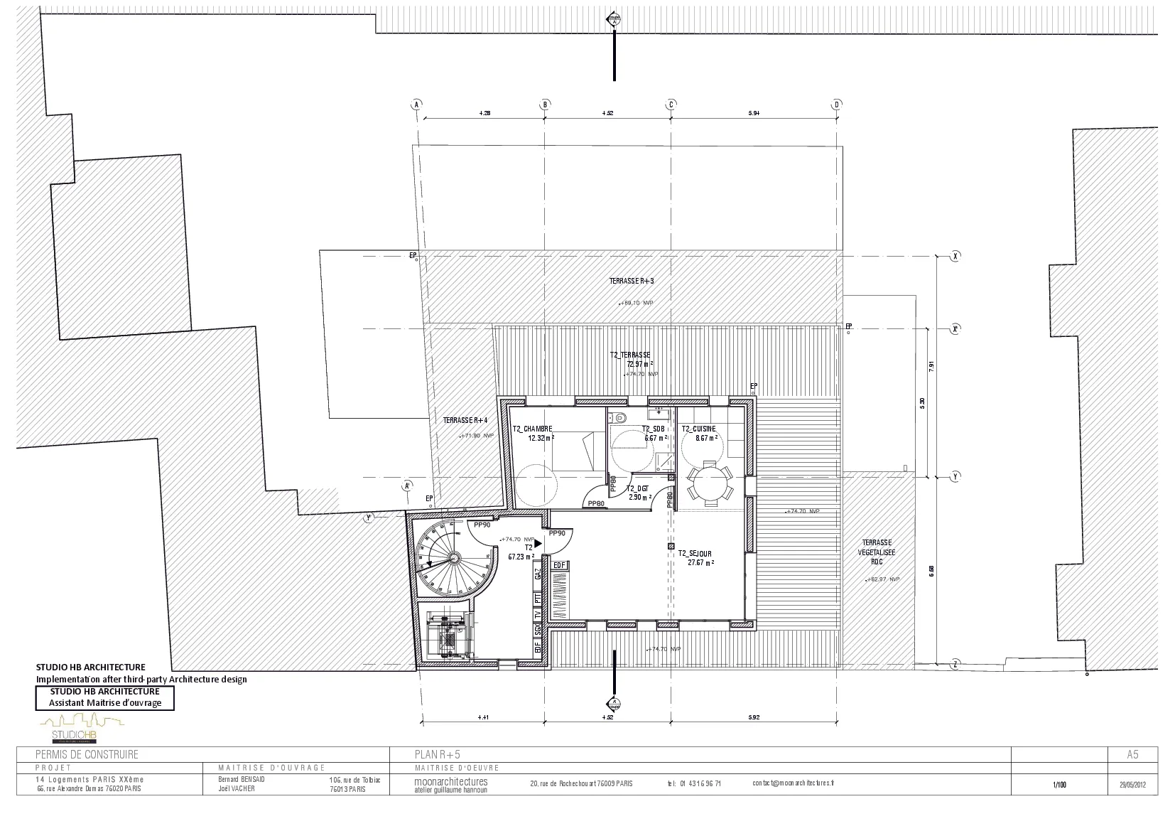
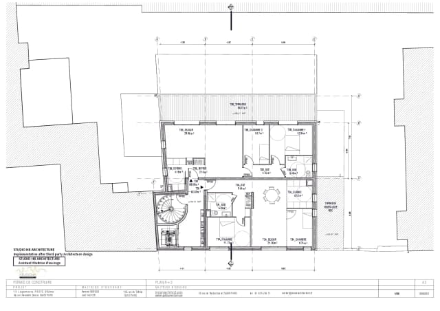
Le dernier étage couronne l’immeuble avec un duplex doté d’une terrasse en rooftop, véritable écrin en hauteur. Conçu comme un espace de vie exceptionnel, ce logement propose des volumes ouverts, une connexion directe avec l’extérieur et des vues dégagées sur le quartier. La terrasse, aménagée avec des matériaux naturels et des garde-corps en verre, prolonge les espaces intérieurs tout en offrant une expérience de vie en plein air au cœur de la ville.
Le projet illustre une approche sémiologique où le contraste devient langage. La façade de brique grise symbolise la continuité historique et la robustesse patrimoniale, tandis que les encadrements blancs et les percées lumineuses incarnent une modernité audacieuse et dynamique. Cette tension visuelle exprime une réconciliation entre passé et futur, entre la permanence et l’innovation.
Conçu dans une logique de durabilité, l’immeuble intègre des solutions techniques avancées pour minimiser son impact environnemental. L’isolation thermique par l’extérieur et les vitrages performants garantissent une efficacité énergétique élevée. Les matériaux, comme la brique et l’aluminium recyclables, renforcent l’engagement écologique du projet. Les eaux pluviales sont gérées de manière responsable, grâce à des dispositifs intégrés dans les abords pavés et sur la terrasse du duplex, préservant ainsi la perméabilité du sol et limitant les risques d’inondation.
“Luminosité Structurée” redéfinit l’architecture urbaine en affirmant qu’il est possible de conjuguer tradition et modernité dans une harmonie contextuelle. Ce projet, à la fois ancré dans l’histoire du quartier et résolument tourné vers l’avenir, transcende les attentes d’un simple immeuble de logements pour devenir une véritable œuvre architecturale. À travers ses contrastes de textures, de matières et de lumière, il célèbre une vision de l’architecture comme un art du dialogue, où chaque détail raconte une histoire de transformation respectueuse et visionnaire.
Luminosité Structurée : L’Éloquence Architecturale de la Rue Alexandre Dumas
Ce projet de réalisation d’un immeuble de logements situé rue Alexandre Dumas dans le 11ᵉ arrondissement de Paris s’inscrit dans une démarche où le contextualisme architectural et la sémiologie dialoguent harmonieusement avec un environnement chargé d’histoire urbaine. Dessiné par Moonarchitectures, avec l’assistance de Studio HB Architecture dans le cadre de la mission « implémentation after third party architecture design » pour le compte du fonds d’investissement Pierre 1er de gestion, le projet s’intègre dans une copropriété horizontale atypique, composée de maisons de faible hauteur et organisée autour d’une rue pavée intérieure. L’intervention principale a consisté à remplacer un garage automobile, au cœur de cet ensemble, par un immeuble de logements modernes tout en conservant le tissu bâti environnant, offrant ainsi un nouvel équilibre architectural et fonctionnel.
1. Contexte et Implantation : Respect et Renouveau
L’emplacement du projet, dans un quartier dense et vivant de Paris, imposait une réflexion sur l’intégration d’une nouvelle construction sans dénaturer l’identité existante. La copropriété horizontale, caractérisée par ses maisons basses et son organisation autour d’une rue pavée, a dicté une approche respectueuse où l’immeuble s’implante discrètement au cœur du site, préservant l’intimité et le caractère convivial de l’ensemble. La démolition du garage central a permis de libérer un espace pour ériger un bâtiment qui, tout en affirmant une identité contemporaine, s’inscrit dans une continuité visuelle et contextuelle.
2. Expression Architecturale : Une Peau de Brique et de Lumière
L’immeuble, réalisé en structure béton, se distingue par une façade en parement de briques grises, associée à des menuiseries extérieures blanches en aluminium et des encadrements métalliques blancs. Ce contraste entre la rugosité tactile de la brique et la finesse géométrique des encadrements crée une composition visuelle à la fois subtile et surprenante. Les ouvertures, pensées comme des percées lumineuses, rythment les façades, apportant à la fois de la légèreté et une dimension graphique qui dialogue avec l’environnement pavé et les volumes des maisons voisines.
3. Organisation Fonctionnelle et Espaces Intérieurs
L’immeuble est organisé sur plusieurs étages, chacun conçu pour maximiser la lumière naturelle et optimiser les vues sur la rue pavée intérieure et le quartier environnant.
- Rez-de-chaussée et Espaces Communs : L’entrée principale, sobre et élégante, donne sur la rue pavée, offrant une transition fluide entre l’extérieur et l’intérieur. Les espaces communs, traités avec des matériaux contemporains comme le béton ciré et le bois clair, créent une ambiance accueillante pour les résidents.
- Appartements Standards : Les logements, répartis sur les étages intermédiaires, sont conçus avec des intérieurs contemporains alliant fonctionnalité et esthétique. Chaque appartement est doté de larges ouvertures encadrées de métal blanc, qui apportent une luminosité abondante et des vues dégagées. Les sols en parquet massif, les murs peints en tons neutres, et les cuisines intégrées renforcent la modernité des espaces tout en favorisant un confort quotidien.
- Dernier Étage et Duplex : Le dernier étage est coiffé d’un appartement en duplex avec une terrasse en roof-top. Ce logement d’exception bénéficie de volumes généreux et d’une connexion directe avec l’extérieur, offrant un espace de vie unique au cœur de Paris. La terrasse, aménagée avec des matériaux naturels et des garde-corps en verre, devient une véritable extension de l’espace intérieur.
4. Approche Sémiologique : Contrastes et Harmonie
Le projet joue sur des contrastes subtils pour évoquer à la fois la robustesse et la modernité, tout en respectant l’héritage architectural environnant. Les briques grises, symboles de pérennité et de sobriété, rappellent les matériaux traditionnels parisiens, tandis que les encadrements métalliques blancs apportent une touche contemporaine et dynamique. Cette tension visuelle exprime un dialogue entre l’ancien et le moderne, entre la matière brute et la lumière.
5. Confort et Durabilité
L’immeuble intègre des solutions techniques et durables pour offrir un cadre de vie à la fois confortable et respectueux de l’environnement.
- Isolation et Énergie : L’isolation thermique par l’extérieur, couplée à des vitrages à haute performance énergétique, garantit un confort optimal tout en minimisant la consommation énergétique.
- Matériaux Durables : Les briques utilisées pour le parement sont sélectionnées pour leur durabilité et leur faible empreinte carbone, tandis que les menuiseries en aluminium sont recyclables, renforçant l’engagement écologique du projet.
- Gestion de l’Eau et Espaces Extérieurs : La terrasse du duplex et les abords pavés de l’immeuble intègrent des solutions de gestion des eaux pluviales pour préserver la perméabilité du sol et éviter les risques d’inondation.
Conclusion : Un Projet Ancré dans son Environnement
“Luminosité Structurée” incarne une approche architecturale où chaque élément, du choix des matériaux à l’organisation des espaces, reflète une attention minutieuse au contexte urbain et social. Ce projet redéfinit la relation entre tradition et modernité, entre collectif et individuel, en intégrant un immeuble contemporain dans une copropriété horizontale préexistante. À travers un jeu de contrastes, de textures et de lumière, il célèbre l’idée que l’architecture peut être à la fois ancrée dans son environnement et tournée vers l’avenir.








































