Résonances Dynamiques : Une Symphonie Architecturale à Marcq-en-Barœul
En 2006, un projet de réaménagement d’un appartement à Marcq-en-Barœul, dans le nord de la France, s’inscrit dans une démarche architecturale où contextualisme et sémiologie se conjuguent pour transformer un cadre moderniste en un espace de vie fluide et sculptural. Confié à Hamid Bouchaala par des clients fidèles, ayant collaboré avec lui lors de son expérience chez Siematic France en 1999, ce projet traduit une relation de confiance où l’architecture devient le moyen de magnifier un lieu, en respectant l’existant tout en lui insufflant une modernité affirmée. L’appartement, niché dans un immeuble des années 1990, caractérisé par ses poutres diagonales apparentes, est repensé comme une scène de vie dynamique où le béton, la lumière et les matériaux nobles se rencontrent dans une harmonie contemporaine.
Situé dans un immeuble en béton typique de son époque, l’appartement bénéficie d’une structure marquée par des poutres diagonales qui, loin d’être dissimulées, sont intégrées comme un élément structurant et visuel de la composition architecturale. Ces lignes fortes, associées à de grandes baies vitrées inondant les espaces de lumière naturelle, ont dicté les choix spatiaux et esthétiques du projet. L’objectif était d’exploiter ce cadre existant pour créer un dialogue entre robustesse structurelle et fluidité des espaces, où chaque élément, du volume à la lumière, participe à un récit spatial cohérent et élégant.
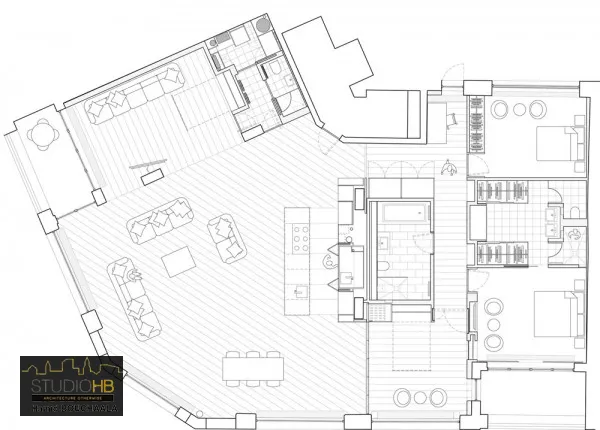
L’architecture intérieure repose sur un contraste subtil entre la matérialité brute du béton et la richesse des matériaux introduits, tels que le granit, le bois et le métal. Le granit, utilisé pour les surfaces et les plans de travail, confère une solidité intemporelle, tandis que le bois introduit une chaleur tactile qui équilibre la froideur du béton. Le métal, présent dans les encadrements et les détails décoratifs, ajoute une touche contemporaine et délicate, renforçant l’identité dynamique et sculpturale de l’ensemble. La forme en haricot de l’appartement guide naturellement l’organisation des espaces, avec un centre ouvert dédié à la réception et des zones périphériques réservées à l’intimité.
L’espace de réception, véritable cœur du projet, se déploie autour d’une grande cuisine ouverte, équipée d’un îlot central en granit, qui devient un point focal tant fonctionnel qu’esthétique. Le salon et la salle à manger, disposés en décalage, exploitent les perspectives offertes par les baies vitrées, renforçant une sensation de profondeur et de mouvement. Aux extrémités de l’appartement, les deux chambres sont conçues comme des espaces privés, chacune avec son propre dressing et sa salle de bains, garantissant un confort optimal. Les matériaux utilisés, notamment le bois pour les parquets et le granit pour les surfaces, établissent une continuité esthétique entre les espaces communs et privés, renforçant l’harmonie globale.
Ce projet s’appuie également sur une approche sémiologique où les contrastes entre la stabilité imposée par la structure en béton et la fluidité des espaces traduisent un équilibre entre tradition et innovation. Les poutres diagonales deviennent des symboles d’ancrage et de mémoire, tandis que les baies vitrées, véritables percées lumineuses, expriment une ouverture vers l’extérieur et une quête de légèreté. La lumière naturelle, omniprésente grâce aux ouvertures généreuses, est exploitée comme un matériau à part entière, jouant avec les volumes et les textures pour créer des variations d’ambiance tout au long de la journée.
L’appartement intègre des solutions techniques modernes qui répondent aux exigences contemporaines en matière de confort et de durabilité. Les vitrages haute performance garantissent une isolation thermique et acoustique optimale, tandis que les matériaux sélectionnés, comme le granit et le bois, allient esthétique et durabilité. Un système d’éclairage LED modulable permet de transformer les espaces en fonction des moments de la journée, renforçant la flexibilité et l’adaptabilité de l’agencement intérieur.
“Résonances Dynamiques” transcende la simple rénovation pour devenir une véritable réinterprétation d’un cadre moderniste. À Marcq-en-Barœul, ce projet incarne une vision où l’architecture ne se contente pas de répondre à des besoins fonctionnels, mais devient un vecteur de poésie spatiale, transformant un appartement en une œuvre d’art habitable. En magnifiant l’existant et en exploitant les potentialités du site, il témoigne d’une architecture qui respecte le passé tout en s’inscrivant résolument dans le présent, offrant un équilibre parfait entre robustesse et légèreté, tradition et innovation.
Résonances Dynamiques : Une Symphonie Architecturale à Marcq-en-Barœul
En 2006, un projet de réaménagement d’appartement à Marcq-en-Barœul, dans le nord de la France, a permis de réinterpréter les codes architecturaux d’un immeuble des années 1990 tout en s’inscrivant dans une démarche de contextualisme architectural et sémiologique. Ce projet, confié à Hamid Bouchaala par des clients fidèles qui avaient déjà collaboré avec lui lors de son expérience chez Siematic France en 1999, témoigne d’une relation de confiance prolongée et d’une vision partagée de l’architecture comme un art de magnifier l’existant. L’appartement, caractérisé par une structure en béton avec des poutres diagonales apparentes, devient ici le support d’un dialogue entre robustesse et fluidité, entre fonctionnalité et poésie spatiale.
1. Contexte et Enveloppe : Un Patrimoine Moderne Réinterprété
Situé dans un immeuble en béton datant du début des années 1990, l’appartement présente une structure marquée par des poutres diagonales qui confèrent au bâtiment une identité visuelle forte. Ce contexte structurel a guidé le projet, transformant ces éléments apparents en acteurs essentiels de la composition spatiale. Les grandes baies vitrées en façade, inondant les espaces de lumière naturelle, ont été exploitées comme un vecteur clé pour sculpter les volumes intérieurs et renforcer la connexion avec l’extérieur. L’objectif était de sublimer cette architecture moderne en l’enrichissant par des interventions subtiles et élégantes, tout en respectant la matérialité brute et les proportions existantes.
2. Expression Architecturale : Mouvement et Fluidité
L’appartement, en forme d’haricot, a été conçu comme un récital dynamique où les espaces semblent se mouvoir en réponse à la lumière et aux perspectives. Chaque détail architectural participe à une mise en scène fluide et cohérente, où les matériaux, les volumes et les textures se répondent harmonieusement.
- Matériaux et Contrastes : Le granit, le bois et le métal ont été sélectionnés pour leur richesse texturale et leur complémentarité. Le granit, utilisé pour les plans et certains revêtements, apporte une solidité intemporelle, tandis que le bois introduit une chaleur naturelle qui contraste avec la froideur brute du béton. Le métal, présent dans les encadrements et les détails décoratifs, ajoute une touche contemporaine et légère.
- Volumes et Perspectives : Les poutres diagonales existantes deviennent des lignes directrices qui orientent la circulation et structurent les espaces. Leur inclinaison crée des perspectives dynamiques, renforcées par l’interaction avec les ouvertures vitrées et la lumière naturelle.
- Lumière et Mouvement : Les grandes baies vitrées jouent un rôle central, inondant l’appartement de lumière et créant des variations d’ambiance tout au long de la journée. La lumière devient un matériau à part entière, modifiant la perception des volumes et des textures.
3. Organisation Fonctionnelle et Fluidité des Espaces
L’agencement intérieur traduit une recherche d’équilibre entre fonctionnalité et liberté, où chaque zone de l’appartement s’intègre naturellement dans un récit spatial fluide.
- Espace de Réception : Situé au cœur de l’appartement, l’espace de réception s’ouvre largement sur les baies vitrées. La cuisine, entièrement ouverte, est équipée d’un îlot central en granit qui fait office de point focal. Autour de cet îlot, l’espace salon et la salle à manger sont disposés en décalage, créant des niveaux de perception distincts qui dynamisent la composition.
- Zones Privées : Les deux chambres, situées aux extrémités de l’appartement, bénéficient de leur propre intimité tout en restant connectées au reste de l’espace par des couloirs aux proportions maîtrisées. Chaque chambre est équipée d’un dressing intégré et d’une salle de bains privative, offrant un confort optimal. Les matériaux utilisés, notamment le bois pour les parquets et le granit pour les surfaces, assurent une continuité esthétique entre les espaces communs et privés.
4. Approche Sémiologique : Un Dialogue entre Stabilité et Mouvement
Le projet traduit une tension sémiologique entre la stabilité imposée par la structure en béton et le mouvement évoqué par la fluidité des espaces intérieurs. Les poutres diagonales deviennent des symboles de robustesse et d’ancrage, tandis que l’agencement libre des espaces et l’interaction avec la lumière traduisent une quête de légèreté et d’ouverture. Ce contraste entre l’ordre structurel et la liberté spatiale exprime une dualité qui reflète à la fois l’histoire de l’immeuble et la modernité des interventions.
5. Confort et Durabilité
L’appartement intègre des solutions techniques visant à améliorer le confort thermique et acoustique tout en respectant les normes contemporaines.
- Isolation et Performance : Les baies vitrées ont été équipées de vitrages haute performance, optimisant l’isolation thermique et réduisant les nuisances sonores extérieures. Les matériaux utilisés, comme le granit et le bois, sont durables et faciles d’entretien, garantissant une longévité sans compromis sur l’esthétique.
- Éclairage et Ambiance : Un système d’éclairage LED intégré dans les plafonds et les éléments de mobilier crée des ambiances modulables, renforçant la flexibilité des espaces pour s’adapter aux différents moments de la journée.
6. Conclusion
“Lignes Intérieures” illustre comment un appartement peut devenir un lieu de vie fluide et sculptural, où chaque détail architectural est pensé pour magnifier l’existant tout en répondant aux besoins contemporains de ses habitants. Ce projet témoigne d’une symbiose réussie entre un cadre patrimonial moderniste et une réinterprétation élégante et fonctionnelle de l’espace. À Marcq-en-Barœul, cette réalisation incarne une vision où l’architecture devient un vecteur de mouvement et de lumière, transformant un simple logement en une véritable œuvre d’art habitable.














