Élégance Verte : Résidence de Tourisme et Bar Lounge à Longueville
Au cœur des paysages verdoyants de Longueville, cette résidence de tourisme se dresse comme une réponse architecturale contemporaine en parfaite harmonie avec la nature. Conçu sur un terrain de 100 hectares, gracieusement cédé par la commune à AEW UK REIT, ce projet ambitieux vise à redéfinir le tourisme dans la région. À seulement 30 minutes de Disneyland Paris, il capitalise sur sa proximité stratégique et le charme unique d’un parcours de golf pour attirer une clientèle exigeante, mêlant passion pour le sport, quête de sérénité et goût pour le luxe. Avec ses quatre étages d’appartements dédiés à l’hébergement et son rez-de-chaussée abritant un bar lounge et un restaurant, le bâtiment devient un véritable sanctuaire pour les amateurs d’élégance et de confort.
L’architecture se veut un hommage à la douceur du paysage local, en s’inscrivant dans une démarche de contextualisme architectural et sémiologique. La résidence épouse la topographie naturelle avec des volumes organisés en terrasses progressives, évoquant des strates qui dialoguent avec le terrain de golf. Les façades vitrées permettent de capturer l’essence même du site, offrant des vues dégagées sur le green et inondant les espaces intérieurs de lumière naturelle. Les terrasses privées, présentes à chaque étage, deviennent des espaces d’évasion personnelle, suspendus entre ciel et terre, tandis que les bardages en bois naturel et les éléments en pierre calcaire locale renforcent l’intégration organique dans le paysage.
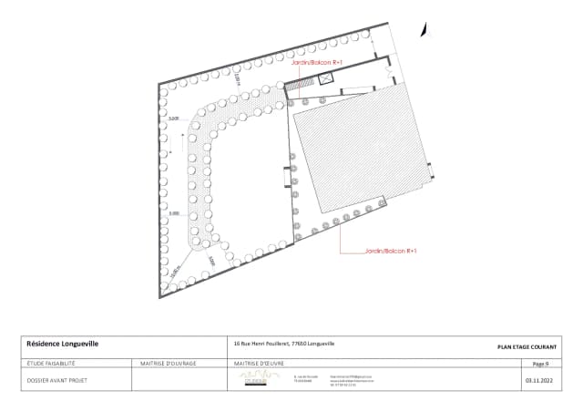
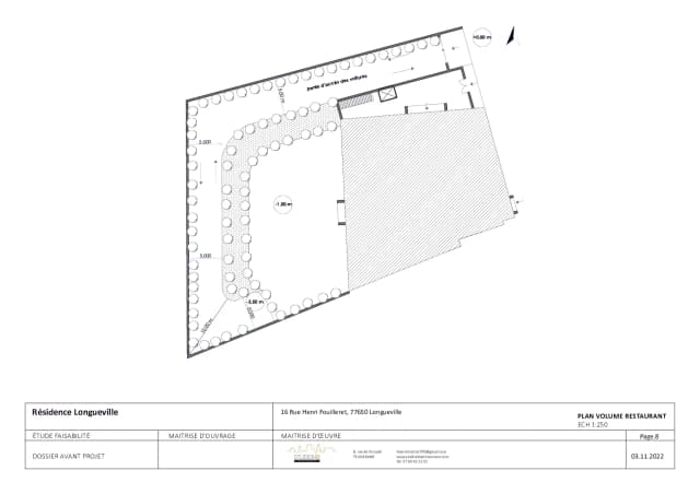
L’organisation des espaces intérieurs reflète un savant équilibre entre fonctionnalité et raffinement. Les étages supérieurs accueillent des suites et des appartements spacieux, tous conçus pour offrir un confort optimal. Les configurations varient entre suites individuelles et appartements familiaux, chaque unité étant dotée de prestations haut de gamme et de terrasses privées orientées vers le golf. Les espaces communs, tels que les lounges partagés à chaque étage, encouragent les interactions entre les résidents dans une atmosphère conviviale et élégante. Au rez-de-chaussée, le bar lounge et le restaurant constituent le cœur vibrant du projet. Le restaurant, baigné de lumière grâce à ses grandes baies vitrées, propose une expérience gastronomique locale et raffinée, tandis que le lounge bar invite à la détente dans un cadre chaleureux, alliant cuir, bois et vues panoramiques sur le parcours de golf.
Chaque détail architectural raconte une histoire où la modernité se conjugue avec le respect du patrimoine naturel. Les terrasses orientées vers le green symbolisent une ouverture généreuse sur le paysage, invitant à une communion directe avec la nature environnante. Les matériaux employés traduisent cette même volonté d’intégration et de durabilité : bois certifié FSC, pierre calcaire locale et verre haute performance se combinent pour créer une enveloppe esthétique et fonctionnelle. À l’intérieur, les textures nobles et les couleurs naturelles prolongent cette continuité, offrant une atmosphère apaisante et sophistiquée.
Conçu dans une démarche éco-responsable, le projet met en œuvre des solutions innovantes pour minimiser son empreinte écologique. Des panneaux solaires sur les toits fournissent une partie des besoins énergétiques, tandis que des systèmes de récupération des eaux pluviales irriguent les jardins paysagers et le parcours de golf. La biodiversité est préservée grâce à des aménagements favorisant les plantations locales et la création de corridors écologiques. Ces initiatives témoignent d’un engagement profond en faveur de la durabilité et de l’harmonie avec le site.
Les espaces extérieurs ont été pensés pour prolonger l’expérience immersive. Le parcours de golf, véritable joyau du projet, offre des perspectives à couper le souffle depuis les résidences et les espaces communs. Les jardins, aménagés avec soin, reflètent une esthétique naturelle et accueillent des moments de détente en plein air, renforçant la connexion entre l’architecture et le paysage.
Ce projet ambitieux positionne Longueville comme une destination touristique de premier plan, en valorisant son patrimoine naturel et sa proximité avec Marne-la-Vallée. À travers une architecture contemporaine et respectueuse de l’environnement, la résidence et son bar lounge restaurant deviennent un symbole de renouveau pour la commune. Ce lieu, où l’architecture et la nature se rejoignent, transcende les attentes pour offrir une expérience unique, mêlant sérénité, luxe et raffinement au cœur d’un cadre exceptionnel.
Introduction
Nichée dans le cadre verdoyant de Longueville, cette résidence de tourisme s’inscrit dans une démarche de contextualisme architectural et sémiologique, où l’architecture contemporaine dialogue avec le paysage naturel d’un terrain de golf. Conçue sur un terrain de 100 hectares, cédé par la commune à AEW UK REIT, ce projet stratégique vise à valoriser le territoire en exploitant son potentiel touristique, notamment sa proximité avec Disneyland Paris, situé à seulement 30 minutes. Avec ses quatre étages dédiés à l’hébergement et un rez-de-chaussée abritant un bar lounge et un restaurant, le projet devient une destination incontournable pour les amateurs de golf, de détente et de gastronomie.
1. Un Cadre Contextuel et Stratégiquement Positionné
La commune de Longueville, riche de ses paysages naturels et de sa proximité avec Marne-la-Vallée, offre un terrain idéal pour développer un projet touristique de grande envergure. La cession de ce terrain par la municipalité traduit une vision de dynamisation économique locale, en misant sur une clientèle internationale et des investisseurs stratégiques. L’architecture du projet s’ancre dans ce contexte en intégrant harmonieusement les bâtiments à l’environnement naturel, tout en respectant la topographie douce et les perspectives ouvertes offertes par le parcours de golf.
2. Expression Architecturale et Vocabulaire Contemporain
L’architecture de la résidence adopte un style contemporain, marqué par des lignes épurées et des matériaux modernes qui s’harmonisent avec le paysage environnant.
- Volumes et Organisation
Les volumes sont disposés en terrasses progressives, permettant une transition fluide entre l’architecture et le terrain de golf. Cette stratification visuelle renforce l’intégration naturelle des bâtiments dans le paysage.
- Façades et Ouvertures
Les façades, largement vitrées, maximisent les vues sur le green et créent une connexion visuelle forte entre les espaces intérieurs et extérieurs. Les terrasses privées, conçues pour chaque étage, offrent des espaces de détente en plein air, baignés de lumière naturelle.
- Matériaux et Finitions
- Bois naturel pour les bardages extérieurs, évoquant une chaleur organique et renforçant l’intégration dans le site.
- Pierre calcaire locale pour les éléments structuraux et les murets extérieurs, créant un écho au patrimoine régional.
- Métal noir et verre pour les garde-corps et les encadrements, soulignant la modernité et la sobriété de l’ensemble.
3. Organisation Fonctionnelle et Espaces Intérieurs
Le projet se divise en deux parties principales : les quatre étages supérieurs, dédiés à la résidence de tourisme, et le rez-de-chaussée, abritant un bar lounge et un restaurant.
- Les Étages Supérieurs : Résidence de Tourisme
Chaque étage est conçu pour accueillir des suites et appartements spacieux, offrant une vue imprenable sur le terrain de golf grâce à de larges baies vitrées et des terrasses privées.
- Suites et Appartements : Configurations variées, de la suite individuelle aux appartements familiaux, tous équipés de prestations haut de gamme.
- Espaces communs : Un espace lounge partagé à chaque étage, propice aux rencontres et aux moments de détente.
- Rez-de-Chaussée : Bar Lounge et Restaurant
Cet espace devient le cœur vibrant de la résidence, où résidents et visiteurs peuvent se retrouver.
- Le restaurant : Une salle élégante avec de grandes baies vitrées, proposant une cuisine locale et raffinée.
- Le lounge bar : Un lieu convivial, avec des assises confortables en cuir et bois, ouvert sur une terrasse panoramique.
- La terrasse extérieure : Un espace aménagé avec des pergolas et du mobilier design, parfait pour profiter de la vue sur le parcours de golf.
4. Approche Sémiologique : Dialogue entre Nature et Architecture
Le projet raconte une histoire où l’architecture et la nature se rencontrent pour créer une expérience immersive.
- Symbolique des Terrasses
Les grandes terrasses côté green symbolisent une ouverture sur le paysage, offrant aux usagers un sentiment de liberté et de connexion avec la nature.
- Matérialité Respectueuse
Les matériaux locaux et naturels traduisent une volonté d’ancrer le projet dans son territoire, tout en adoptant un langage architectural universel et contemporain.
- Ambiance Intérieure
L’utilisation de textures nobles et de palettes de couleurs naturelles à l’intérieur reflète une continuité avec l’environnement extérieur, renforçant la sérénité et le confort.
5. Durabilité et Engagement Écologique
Le projet intègre des solutions durables pour minimiser son impact environnemental et favoriser l’harmonie avec le site.
Énergie et Efficacité
- Panneaux solaires sur les toitures pour couvrir une partie des besoins énergétiques.
- Systèmes de chauffage et de climatisation basés sur des pompes à chaleur pour une consommation énergétique optimisée.
Gestion des Ressources
- Récupération des eaux de pluie pour irriguer les espaces paysagers et le parcours de golf.
- Utilisation de matériaux recyclés et locaux, comme le bois certifié FSC et la pierre calcaire.
Biodiversité et Paysage
- Préservation des espaces naturels existants et création de corridors écologiques pour favoriser la biodiversité.
6. Espaces Extérieurs et Paysagers
Les espaces extérieurs sont pensés pour offrir une expérience immersive et apaisante, en parfaite harmonie avec le parcours de golf.
Le Parcours de Golf
Ce terrain verdoyant constitue le cœur du projet, avec des vues imprenables depuis les résidences et le bar lounge.
Aménagements Paysagers
Les jardins entourant la résidence et les espaces de loisirs utilisent des plantations locales, favorisant la biodiversité et offrant une esthétique naturelle.
7. Un Projet Ancré dans Longueville
Ce projet architectural illustre l’ambition de faire de Longueville une destination touristique majeure, en valorisant son patrimoine naturel et sa proximité stratégique avec Disneyland Paris. La résidence de tourisme et son bar lounge restaurant deviendront un lieu emblématique, attirant une clientèle nationale et internationale tout en contribuant au développement économique local.
Conclusion
Avec son architecture contemporaine, ses matériaux durables et son intégration harmonieuse dans le paysage de Longueville, cette résidence de tourisme incarne une vision moderne du luxe et du bien-être. Offrant un cadre idyllique pour les amateurs de golf et les visiteurs en quête de sérénité, elle devient un modèle exemplaire d’équilibre entre développement touristique, respect environnemental et valorisation du territoire. Un projet où l’architecture et la nature s’unissent pour offrir une expérience unique, au cœur de la verdure et à deux pas de l’effervescence de Marne-la-Vallée.





















































