Héritage en Perspectives : Une Galerie Vivante entre Mémoire et Modernité
Ce projet de création d’une galerie d’exposition et d’un centre de documentation consacré aux modèles réduits d’artillerie, héritage de la Renaissance à la fin du XIXe siècle, incarne une fusion subtile entre contextualisme architectural et sémiologie. Implanté dans le cadre historique de l’église Saint-Thomas d’Aquin, dans le 7e arrondissement de Paris, il offre un dialogue fascinant entre passé et présent. Avec l’ajout d’un salon de thé et d’un restaurant, le projet transcende la simple exposition muséale pour devenir un lieu d’échanges culturels et de convivialité. Situé à proximité du boulevard Saint-Germain, ce site emblématique s’appuie sur un bâtiment du XVIIe siècle, anciennement propriété du ministère de la Défense, dont les murs de vieilles pierres témoignent d’un riche passé architectural. Le terrain, marqué par une différence de niveau de cinq mètres entre la rue du Bac et la zone d’intervention, devient un élément scénographique majeur, rythmé par des escaliers en paliers et des places à l’italienne, conférant au parcours une dimension romantique et immersive.
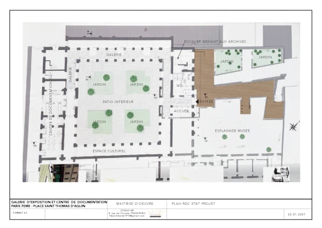
L’expression architecturale traduit un équilibre délicat entre histoire et modernité. À l’entrée, un auvent monumental en métal et verre accueille les visiteurs avec légèreté et transparence, établissant un contraste visuel avec la robustesse des pierres restaurées. Ces murs, enrichis de panneaux en verre sérigraphié, racontent l’histoire des modèles réduits d’artillerie et leur rôle diplomatique, transformant l’architecture en un support narratif et éducatif. Les espaces intérieurs, largement vitrés, ouvrent sur des patios et des jardins, renforçant la connexion visuelle et fonctionnelle entre intérieur et extérieur. Ces cours arborées deviennent des lieux de contemplation où se déploie une atmosphère apaisante, propice à la réflexion.
Le programme fonctionnel s’organise autour de salles d’exposition permanentes et modulables, mettant en valeur des modèles ornés de joyaux et d’or, symboles de prestige diplomatique. Ces vitrines modernes côtoient un centre de documentation avec des espaces de lecture intérieurs et extérieurs, créant une expérience immersive pour les chercheurs et les amateurs d’histoire. Le salon de thé et le restaurant, situés au cœur du bâtiment, complètent cette offre culturelle. Le salon, ouvert sur les patios, invite à des pauses gourmandes dans un cadre élégant, tandis que le restaurant propose une cuisine inspirée de l’histoire du lieu. Ces espaces partagés incarnent une volonté de conjuguer culture et sociabilité, transformant la visite en une expérience multisensorielle.
Chaque intervention architecturale traduit une intention sémiologique claire. Les murs restaurés symbolisent la mémoire collective, tandis que les ajouts en verre et métal expriment une ouverture vers l’avenir. La juxtaposition des textures, des volumes et des récits visuels crée une narration fluide où chaque élément raconte une histoire. Les escaliers en paliers, ornés de végétation et de bancs en pierre, transforment la dénivellation en une promenade architecturale et paysagère, intégrant harmonieusement le site à son environnement urbain.
La durabilité est au cœur de ce projet. Les matériaux d’origine, comme les pierres, sont restaurés avec soin, tandis que les interventions contemporaines utilisent des matériaux recyclables comme le verre et le métal. Les patios et jardins, plantés d’essences locales, favorisent la biodiversité et offrent un cadre de détente en harmonie avec le site. Les vitrages haute performance et les systèmes d’éclairage LED réduisent la consommation énergétique, maximisant l’utilisation de la lumière naturelle pour éclairer les espaces.
“Héritage en Perspectives” dépasse la simple réhabilitation d’un patrimoine historique pour devenir une destination vivante, où culture, convivialité et durabilité s’entrelacent harmonieusement. De l’auvent accueillant aux patios apaisants, chaque détail architectural illustre une vision où passé et présent se rencontrent pour raconter une histoire universelle. Ce projet est une célébration de l’architecture comme moyen de transmission, de partage et de création d’espaces inspirants, unissant mémoire et modernité dans une œuvre intemporelle.
Héritage en Perspectives : Une Galerie Vivante entre Mémoire et Modernité
Ce projet ambitieux de faisabilité pour la création d’une galerie d’exposition et d’un centre de documentation dédié aux modèles réduits d’artillerie, datant de la Renaissance à la fin du XIXe siècle, s’inscrit dans une approche où contextualisme architectural et sémiologie se conjuguent harmonieusement. Situé sur le site historique de l’église Saint-Thomas d’Aquin dans le 7e arrondissement de Paris, ce projet vise à sublimer un patrimoine méconnu dans un cadre architectural où le passé dialogue avec le présent. L’ajout d’un salon de thé et d’un restaurant à l’intérieur enrichit cette proposition, faisant de ce lieu une destination à la fois culturelle, éducative et conviviale.
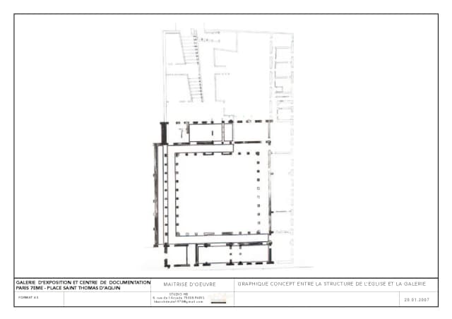
1. Un Contexte Patrimonial Unique
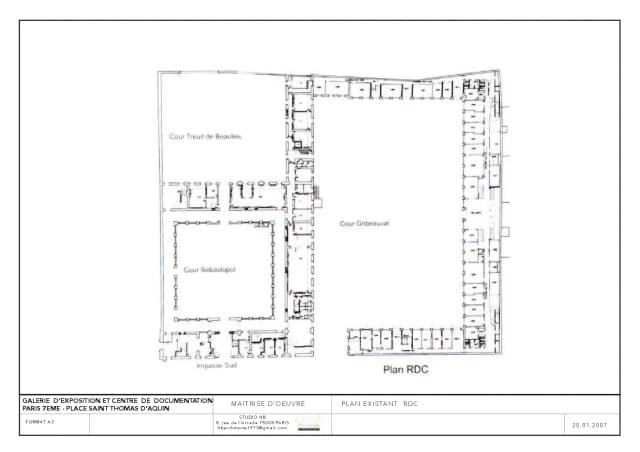
Proche du boulevard Saint-Germain, ce projet s’appuie sur un site chargé d’histoire. Un bâtiment du XVIIe siècle, autrefois propriété du ministère de la Défense et adossé à l’église, devient le point central de cette transformation. Marqué par des murs en vieilles pierres, il incarne l’authenticité et la richesse du patrimoine architectural parisien. Une particularité topographique, avec une différence de niveau de cinq mètres entre la rue du Bac et le terrain du site, a inspiré une conception où les transitions spatiales deviennent des moments architecturaux, rythmés par des escaliers en paliers et de petites places à l’italienne, renforçant l’atmosphère intime et poétique du projet.
2. Expression Architecturale : Un Dialogue entre Histoire et Modernité
La conception du bâtiment s’appuie sur une lecture subtile de son contexte historique et sur une intervention contemporaine respectueuse mais audacieuse.
Un Grand Auvent Métallique et Vitré
L’entrée principale, située rue du Bac, est soulignée par un auvent monumental en métal et verre. Cet élément accueille les visiteurs tout en affirmant l’identité contemporaine du projet. Sa transparence et sa légèreté contrastent avec la robustesse des murs en pierre, établissant un équilibre visuel entre tradition et modernité.
Façades en Vieilles Pierres et Verre Sérigraphié
Les murs existants sont restaurés et enrichis de panneaux en verre sérigraphié, fixés avec soin pour préserver l’intégrité des pierres. Ces panneaux narratifs illustrent l’histoire des modèles réduits d’artillerie et leur importance diplomatique, transformant les murs en supports éducatifs et artistiques.
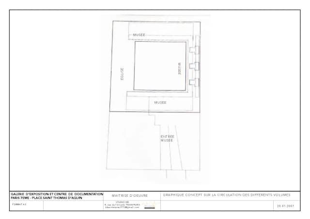
Espaces Vitrés et Patios Ouverts
De grandes baies vitrées ouvrent les espaces d’exposition et de documentation sur les patios et les jardins, créant une connexion visuelle et fonctionnelle entre intérieur et extérieur. Ces patios deviennent des lieux de contemplation et de détente, renforçant l’expérience immersive.
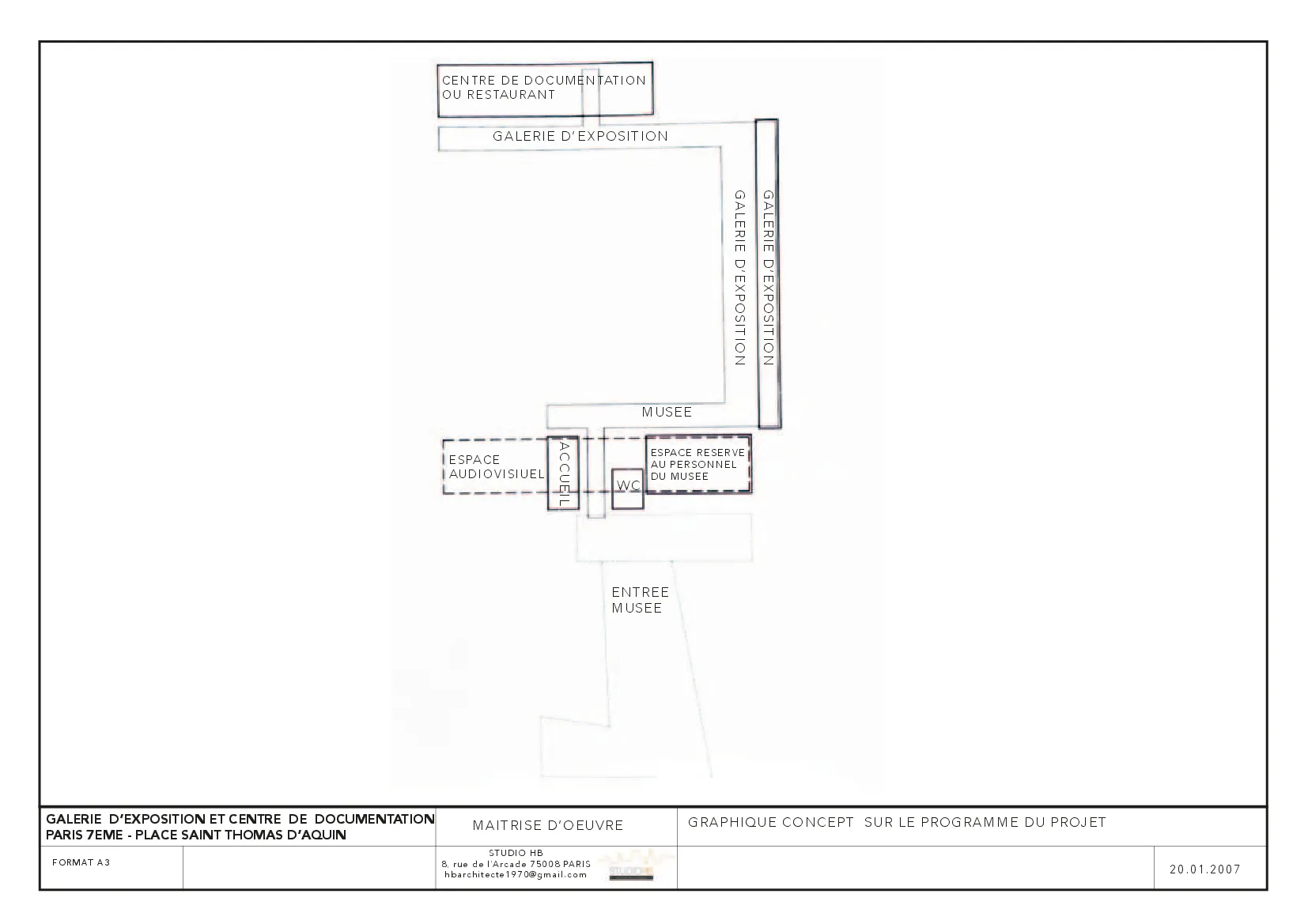
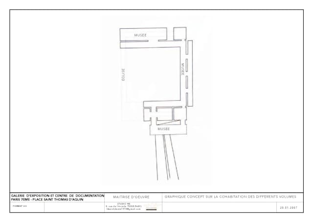
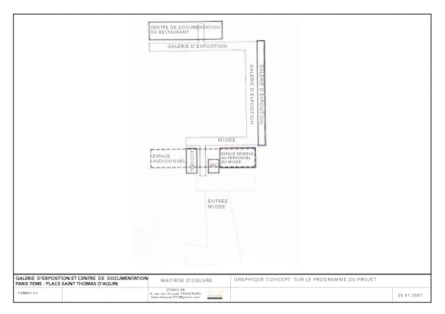
3. Organisation Fonctionnelle et Programmation
La programmation intérieure s’articule autour d’espaces dédiés à la culture, à la restauration et à la convivialité, offrant une expérience multifacette aux visiteurs.
Salles d’Exposition
Les salles permanentes mettent en valeur les modèles réduits d’artillerie, exposés dans des vitrines modernes et élégantes. Les espaces modulables permettent d’accueillir des expositions temporaires, renouvelant l’intérêt des visiteurs et diversifiant les thématiques.
Centre de Documentation
Une grande salle de lecture intérieure est complétée par des espaces de consultation en plein air dans les patios, offrant un cadre inspirant et apaisant pour les chercheurs et les curieux.
Salon de Thé et Restaurant
Situé au cœur du bâtiment, cet espace de restauration est pensé comme une prolongation de l’expérience culturelle. Le salon de thé, ouvert sur les patios, invite à une pause gourmande dans un cadre élégant, tandis que le restaurant propose une cuisine raffinée, en dialogue avec l’histoire et l’architecture du lieu.
Circulations et Transitions
Les escaliers en paliers, ornés de végétation et de bancs en pierre, rythment le parcours des visiteurs entre la rue du Bac et le site, transformant cette dénivellation en une séquence architecturale et paysagère mémorable.
4. Approche Sémiologique : Un Dialogue de Sens et de Symboles
Chaque intervention architecturale porte une signification, traduisant les valeurs de mémoire, de transmission et d’ouverture qui sous-tendent ce projet.
Mémoire et Modernité
Les murs en pierre restaurés incarnent l’histoire du lieu, tandis que les interventions en verre et métal traduisent une ouverture vers l’avenir. Cette dualité souligne l’importance de préserver le passé tout en répondant aux besoins contemporains.
Récits Visuels
Les panneaux sérigraphiés ajoutent une dimension narrative au bâtiment, faisant des murs non seulement des éléments architecturaux, mais aussi des supports éducatifs.
Convivialité et Partage
Le salon de thé et le restaurant, en plus des espaces de lecture et des patios, symbolisent la volonté de créer un lieu où culture et sociabilité se rencontrent.
5. Durabilité et Conscience Environnementale
Le projet intègre des solutions durables pour minimiser son impact environnemental tout en valorisant le patrimoine existant.
Matériaux Locaux et Durables
Les pierres d’origine sont restaurées avec des techniques traditionnelles, tandis que les nouvelles interventions utilisent des matériaux recyclables comme le verre et le métal.
Gestion Écologique des Espaces Extérieurs
Les patios et les jardins sont aménagés avec des essences locales, favorisant la biodiversité et créant des lieux de détente en harmonie avec l’environnement.
Performance Énergétique
Des vitrages haute performance et des systèmes d’éclairage LED assurent une consommation énergétique réduite, tandis que les espaces ouverts maximisent l’apport de lumière naturelle.
Conclusion
“Héritage en Perspectives” réinvente un patrimoine architectural et historique en un lieu de mémoire vivant et accueillant. À travers l’intégration de salles d’exposition, d’un centre de documentation et d’espaces de restauration, ce projet transcende sa fonction initiale pour devenir une destination culturelle et conviviale. Chaque détail, de l’auvent accueillant aux patios apaisants, traduit une vision où l’architecture raconte une histoire tout en créant un cadre de vie durable et inspirant. Ce projet est une célébration de l’architecture comme vecteur de transmission, de convivialité et de beauté intemporelle.

































































































