« Strate en Résonance »
Strate en Résonance transcende le simple projet architectural pour devenir une véritable réflexion sur l’interaction entre un lieu, ses habitants et son environnement naturel. Implanté sur les hauteurs de Sèvres, ce campus de design conçu pour l’école Strate établit un dialogue subtil entre le tissu urbain des immeubles résidentiels voisins et la majesté boisée de la forêt environnante. Le projet met en œuvre une approche où la pédagogie, le paysage et l’innovation coexistent harmonieusement, offrant un espace où chaque détail reflète la créativité et le respect du site. Inspirée des strates géologiques et des rythmes naturels de son emplacement, l’architecture adopte une composition horizontale en terrasses successives qui s’intègre naturellement dans la pente du terrain, créant une transition fluide entre le bâti et la nature.
Les volumes construits s’insinuent avec élégance entre les arbres, laissant la forêt se prolonger sur les toitures végétalisées et dans les percées visuelles offertes par de grandes ouvertures vitrées. Les façades, alternant verre sérigraphié et bois lamellé-collé, jouent avec la lumière pour refléter la forêt et changer d’apparence au fil des saisons, établissant une relation constante entre l’intérieur et l’extérieur. Les colonnes élancées rappellent les troncs des arbres, tandis que les espaces ouverts évoquent des clairières propices à la rencontre et à la créativité. Chaque détail de l’architecture, des motifs fractals des façades aux lignes fluides des aménagements intérieurs, illustre l’esprit innovant et numérique qui anime l’école, en écho à sa vocation pédagogique.
Les espaces sont conçus pour maximiser la flexibilité et répondre aux besoins évolutifs des étudiants. Les plateaux modulables permettent une alternance entre ateliers, laboratoires et zones collaboratives, tandis que chaque espace de travail s’ouvre sur la forêt, offrant un cadre stimulant et apaisant. Un amphithéâtre semi-enterré, orienté vers la nature, devient un lieu central pour conférences, ateliers et expositions, intégrant pleinement l’environnement dans l’expérience pédagogique. En matière de durabilité, le campus privilégie des matériaux biosourcés tels que le bois local et des enduits à base de terre pour les finitions intérieures. La conception bioclimatique favorise les apports solaires passifs, la ventilation naturelle et l’utilisation des eaux pluviales pour irriguer les espaces verts, tandis que les bâtiments modulaires et démontables réduisent l’impact environnemental tout en offrant une flexibilité future.
S’intégrant parfaitement dans le paysage urbain, le projet préserve une échelle humaine en dialoguant avec les immeubles voisins par l’utilisation de matériaux chaleureux comme le bois et la végétation. Les espaces extérieurs, partagés entre les étudiants et les habitants du quartier, créent des opportunités d’échange et de lien social. En parallèle, la forêt de Sèvres est mise en valeur à travers des chemins aménagés et une galerie à ciel ouvert exposant les travaux des étudiants, établissant un pont entre art et nature. Strate en Résonance est bien plus qu’un campus : il devient une extension harmonieuse de son environnement, un lieu où innovation et durabilité se rejoignent pour offrir un cadre d’apprentissage unique et inspirant. Avec ce projet, il a été illustré une vision de l’architecture qui célèbre la symbiose entre l’homme et la nature, tout en incarnant l’esprit créatif et progressiste de l’école Strate.
Type d’Information
Architecture, Urbanisme et Paysage : Le projet articule une réponse spatiale et symbolique aux contrastes du site (urbain/rural), tout en intégrant les valeurs éducatives et créatives de l’institution.
Détails du Projet
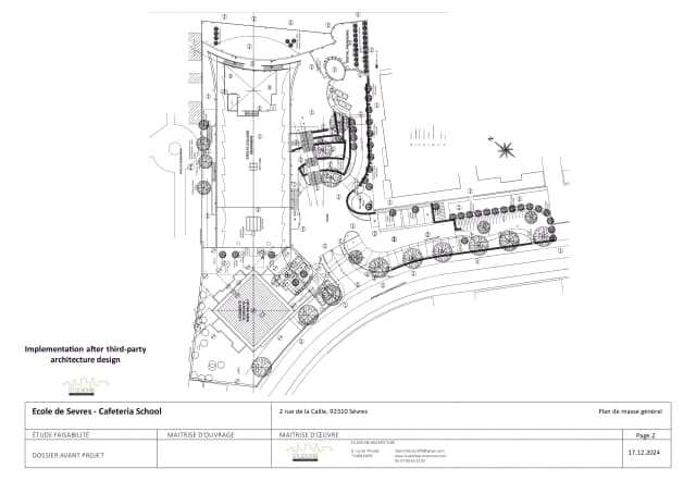
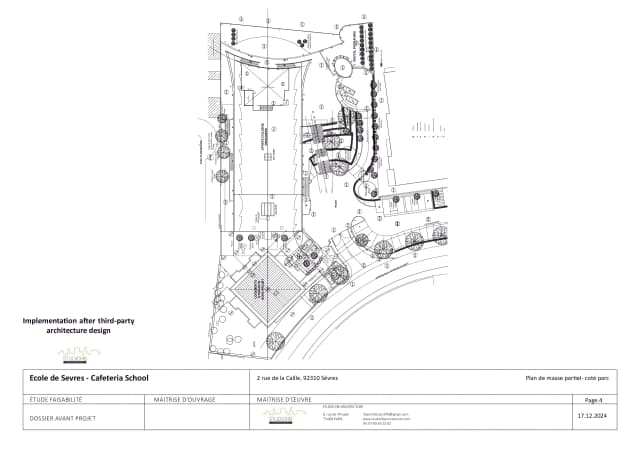
1. Analyse contextuelle et insertion spatiale
Morphologie urbaine : L’école s’intègre dans la continuité des immeubles environnants, mais avec une volumétrie décomposée en terrasses et paliers pour s’adapter à la topographie.
Paysage forestier : Les volumes construits semblent “glisser” entre les arbres, préservant les percées visuelles vers la forêt et intégrant la végétation dans l’architecture.
2. Expression architecturale
Formes organiques et stratifiées : Le bâtiment reprend une composition en “strates”, en écho à la vocation de l’école et à la géologie des hauteurs de Sèvres.
Jeu de transparence : Les façades utilisent des matériaux comme le verre sérigraphié ou le bois lamellé-collé pour refléter l’environnement naturel et filtrer la lumière.
3. Approche sémiologique
Références symboliques : Les lignes architecturales s’inspirent des arbres environnants, avec des colonnes élancées rappelant des troncs et des espaces ouverts évoquant des clairières.
Motifs inspirés du design : Les éléments de façade et d’aménagement intérieur intègrent des motifs issus de l’univers du design numérique (fractales, lignes fluides) pour exprimer la créativité et la modernité.
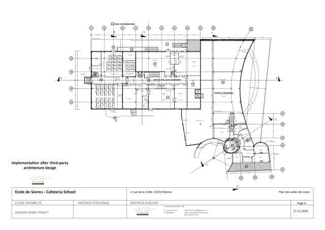
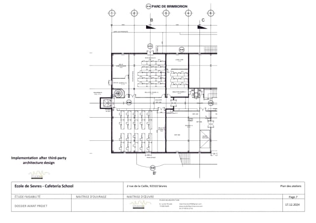
4. Fonctionnalité et pédagogie
Espaces modulables : Des plateaux flexibles permettent de répondre aux besoins évolutifs des étudiants (ateliers, laboratoires numériques, coworking).
Dialogue intérieur/extérieur : Chaque espace de travail bénéficie d’une connexion visuelle ou physique à la forêt pour stimuler l’inspiration et le bien-être.
Amphithéâtre naturel vitré : Une structure semi-enterrée ouverte vers la forêt et vers Paris sert d’espace polyvalent pour des conférences, ateliers ou expositions.
5. Durabilité
Matériaux biosourcés : Utilisation de bois local pour les structures principales, complétée par des enduits terre pour les finitions intérieures.
Conception bioclimatique : Orientation optimisée pour réduire les besoins énergétiques, ventilation naturelle et récupération des eaux pluviales.
Coût carbone réduit : Construction modulaire et démontable pour minimiser l’impact environnemental.
Contexte Environnant
- Immeubles de logement :
- L’architecture joue sur une transition douce avec les bâtiments voisins par une échelle progressive et des façades “domestiquées” (bois et végétation intégrée).
- Les espaces extérieurs de l’école servent de lieu d’interaction entre étudiants et résidents locaux.
- Forêt de Sèvres :
- Le projet valorise la forêt en préservant les arbres matures et en intégrant des chemins publics connectant l’école à la nature.
- Une “galerie en plein air” propose une exposition permanente des travaux des étudiants dans les sentiers forestiers.
- Tendances pédagogiques :
- Répondre aux besoins d’un espace inspirant pour une école axée sur la créativité numérique et le design de demain.
- Soutenir une démarche éducative respectueuse de l’environnement et propice au bien-être.
Conclusion
Strate en Résonance traduit une vision de l’architecture en harmonie avec son environnement, alliant nature et innovation. À travers son intégration spatiale et ses références
sémiologiques, ce campus devient une extension à la fois du paysage naturel et du tissu urbain, reflétant les valeurs de créativité, de durabilité et de pédagogie de l’école Strate.







































