« L’élégance contextuelle de Massy »
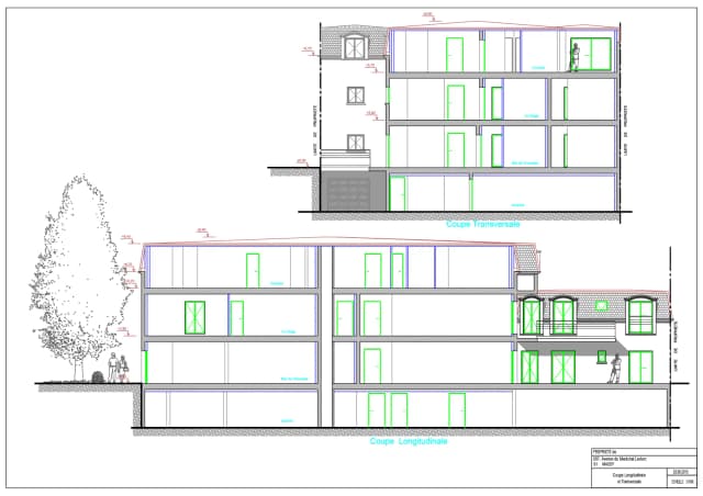
L’Élégance Contextuelle de Massy se déploie comme un hommage à l’architecture locale, mêlant tradition et modernité dans un équilibre subtil. Situé dans un quartier densément peuplé de Massy, cet immeuble résidentiel de 11 logements, conçu par Studio HB, s’inspire des maisons de maître et des petits immeubles traditionnels qui caractérisent le paysage urbain du sud de l’Île-de-France. L’immeuble, organisé sur trois niveaux principaux et un attique en retrait, s’intègre harmonieusement dans son environnement grâce à des proportions soignées et une volumétrie élégante, tout en maximisant l’usage du terrain dans un contexte urbain dense. La façade principale, rythmée par des ouvertures verticales et des détails ornementaux, évoque l’esthétique des constructions patrimoniales, avec des matériaux comme l’enduit clair, la pierre reconstituée et le métal noir qui créent une interaction subtile entre authenticité et contemporanéité.
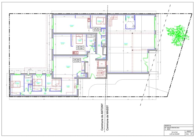
L’organisation fonctionnelle répond aux besoins variés des habitants. Au rez-de-chaussée, les logements disposent de jardins privatifs, renforçant le lien avec l’extérieur, tandis que les étages intermédiaires offrent des balcons et loggias intégrés qui équilibrent intimité et convivialité. Les logements en attique bénéficient de terrasses spacieuses, offrant des vues dégagées sur le quartier, avec des matériaux plus légers comme le bardage bois ou métal pour créer un contraste discret avec les niveaux inférieurs. Chaque espace est conçu pour maximiser la lumière naturelle, avec une orientation bioclimatique qui favorise les apports solaires passifs, tandis que des brise-soleil intégrés apportent confort thermique en été.
Le projet met en œuvre une approche sémiologique réfléchie, dialoguant avec l’histoire locale tout en affirmant une identité contemporaine. Les références aux maisons de maître se traduisent par des soubassements en pierre, des toitures inclinées et une symétrie maîtrisée, tandis que des éléments modernes comme les garde-corps en métal noir et les vitrages généreux témoignent d’une lecture actuelle et raffinée du patrimoine architectural. Cette dualité se retrouve dans la conception des espaces extérieurs, où des jardins partagés et des plantations locales renforcent le lien social et la convivialité, tout en participant à la réduction de l’empreinte écologique.
La durabilité est au cœur de la conception, avec une isolation thermique par l’extérieur et l’utilisation de matériaux respectueux de l’environnement, tels que la pierre reconstituée et le bois certifié. Le projet intègre également des solutions innovantes comme des panneaux solaires et un système d’irrigation pour les espaces verts, garantissant une efficacité énergétique optimale et un confort durable pour les habitants.
L’Élégance Contextuelle de Massy illustre la manière dont une architecture contextuelle et durable peut enrichir l’identité urbaine tout en répondant aux besoins contemporains des résidents. Par son équilibre entre tradition et modernité, ses matériaux soigneusement sélectionnés et ses espaces généreux, cet immeuble résidentiel transcende les exigences fonctionnelles pour devenir un exemple d’architecture collective élégante et ancrée dans son environnement.
Type d’Information
Architecture Résidentielle Contextuelle : Ce projet explore une approche architecturale qui dialogue avec l’environnement urbain tout en affirmant une identité élégante et fonctionnelle.
Détails du Projet
1. Analyse contextuelle et insertion spatiale
• Quartier de Massy :
• Le quartier se caractérise par une densité urbaine notable, mêlant des constructions récentes et un patrimoine architectural marqué par des maisons de ville traditionnelles et des petits immeubles à l’échelle humaine.
• L’objectif du projet est de préserver une échelle conviviale tout en maximisant l’utilisation du foncier dans un contexte urbain dense.
• Référence aux maisons de maître :
• Le projet s’inspire des proportions et des éléments architecturaux caractéristiques des maisons de maître, comme les façades rythmées, les toitures en pente et les détails ornementaux, pour s’inscrire dans une continuité visuelle et historique.
2. Expression architecturale
• Volumétrie et proportions :
• L’immeuble est organisé sur trois niveaux principaux, avec un attique en retrait pour minimiser l’impact visuel de la hauteur et respecter l’échelle du voisinage.
• La façade principale est symétrique, rythmée par des ouvertures verticales et des éléments décoratifs qui rappellent les maisons de maître.
• Matériaux et textures :
• Enduit clair : Utilisé pour les façades, dans des teintes neutres comme le blanc cassé ou le beige, évoquant l’élégance des constructions traditionnelles.
• Pierre reconstituée : Présente sur les soubassements et certains encadrements, renforçant le caractère patrimonial.
• Métal noir : Pour les garde-corps et les encadrements des fenêtres, ajoutant une touche contemporaine.
• Toiture en pente : Couverture en ardoise ou en tuiles plates, rappelant les maisons traditionnelles du sud de l’Île-de-France.
3. Organisation fonctionnelle
• Rez-de-chaussée : Espaces d’accueil et logements
• Entrée principale : Conçue comme un élément architectural marquant, avec une porte en bois massif et un porche encadré par des colonnes discrètes.
• Logements en rez-de-jardin : Certains logements bénéficient d’un accès direct à de petits jardins privatifs, renforçant la convivialité et le lien avec l’extérieur.
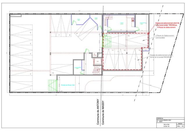
• Locaux techniques : Un espace discret pour les locaux de service et les places de stationnement en sous-sol, accessibles via une rampe intégrée au terrain.
• Étages intermédiaires : Logements familiaux
• Organisation des logements autour de circulations centrales lumineuses, avec des espaces de vie orientés vers les meilleures expositions.
• Chaque appartement dispose de balcons ou loggias intégrés à la façade, offrant des espaces extérieurs privatifs tout en préservant l’intimité.
• Dernier niveau : Attique en retrait
• Les logements en attique bénéficient de terrasses spacieuses, offrant des vues dégagées sur le quartier.
• L’utilisation de matériaux plus légers pour l’attique (bardage bois ou métal) crée un contraste subtil avec le reste de l’immeuble.
4. Approche sémiologique
• Dialogue avec l’histoire locale :
• L’immeuble reprend des éléments caractéristiques des maisons de maître et des petits immeubles traditionnels, comme les proportions verticales, les soubassements en pierre, et les toitures inclinées.
• Intégration urbaine :
• L’échelle du bâtiment et le rythme des façades permettent une transition douce entre les constructions environnantes, tout en affirmant une identité élégante et intemporelle.
• Modernité discrète :
• Les matériaux contemporains, comme le métal noir et les vitrages généreux, apportent une touche de modernité tout en respectant le cadre patrimonial.
5. Construction et durabilité
• Matériaux durables et locaux :
• Utilisation de pierre reconstituée pour réduire l’impact environnemental, tout en évoquant les matériaux traditionnels de la région.
• Isolation thermique par l’extérieur pour garantir une efficacité énergétique optimale.
• Conception bioclimatique :
• Orientation des logements pour maximiser les apports solaires passifs.
• Intégration de brise-soleil pour limiter les surchauffes estivales, en harmonie avec l’esthétique générale.
• Espaces verts intégrés :
• Des jardins partagés et des plantations locales participent à la réduction de l’empreinte écologique et renforcent la convivialité entre les résidents.
6.Contexte Environnant
1. Densité urbaine :
• Le projet répond au défi d’une densité élevée en proposant une architecture qui maximise l’usage du terrain tout en préservant l’habitabilité et la qualité des espaces extérieurs.
2. Référence au patrimoine local :
• En reprenant les codes des maisons de maître et des petits immeubles traditionnels, l’immeuble s’intègre harmonieusement dans le tissu urbain tout en apportant une lecture contemporaine.
3. Lien social et convivialité :
• Les espaces extérieurs, les balcons privatifs, et les jardins partagés favorisent les interactions entre les habitants et leur cadre de vie.
Conclusion
“L’Élégance Contextuelle de Massy” incarne une approche respectueuse et innovante de l’habitat collectif en milieu urbain dense. Grâce à un dialogue subtil entre tradition et modernité, ce projet de 11 logements s’intègre parfaitement dans son environnement tout en offrant une architecture élégante, fonctionnelle, et durable. Réalisé par Studio HB, il illustre la manière dont une conception contextuelle et sémiologique peut enrichir l’identité urbaine tout en répondant aux besoins contemporains des habitants.































