“La Renaissance Moderne Niçoise”
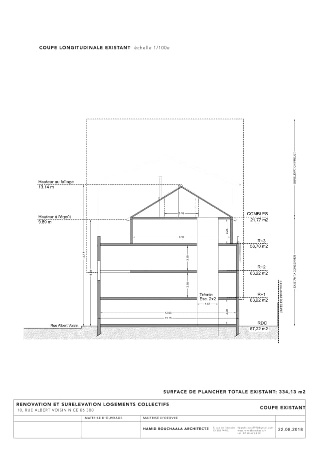
“La Renaissance Moderne Niçoise” est un projet de rénovation et de modernisation d’un immeuble de six niveaux situé dans la ville de Nice. Conçu pour la société FP Invest, spécialisée dans les résidences touristiques, ce projet s’inscrit dans un rapport de contextualisme architectural et sémiologique, respectant les codes esthétiques du paysage urbain niçois tout en apportant une touche contemporaine. Situé dans un environnement composé de petits immeubles typiques niçois, l’immeuble, vieillissant, a été entièrement restructuré pour accueillir des logements touristiques confortables, avec une terrasse généreuse au dernier niveau et une esthétique moderne sublimée par un enduit à la chaux blanche.
La Renaissance Moderne Niçoise, nichée au cœur de Nice, s’impose comme une symbiose parfaite entre patrimoine méditerranéen et modernité architecturale. Ce projet, conçu par Studio HB pour FP Invest, réinterprète un immeuble vieillissant de six niveaux en une résidence touristique haut de gamme, alliant esthétisme contemporain et respect de l’identité urbaine niçoise. Entouré de façades colorées et rythmiques caractéristiques de la Côte d’Azur, l’immeuble se fond harmonieusement dans son environnement tout en proposant une vision audacieuse et lumineuse. Son enduit à la chaux blanche, ses balcons filants aux garde-corps géométriques en métal noir, et ses terrasses panoramiques au dernier niveau traduisent un dialogue subtil entre tradition et innovation.
L’insertion du bâtiment dans le tissu urbain niçois s’inscrit dans une continuité patrimoniale réfléchie. Les alignements et proportions des immeubles environnants sont respectés, tandis que les façades lumineuses en finition lisse captent et reflètent la lumière naturelle propre à la Méditerranée. Les balcons, inspirés des grilles artisanales traditionnelles, et les terrasses en retrait du dernier étage offrent une transition élégante entre espace intérieur et extérieur. Ces espaces de contemplation, ouverts sur la ville et la mer, incarnent le luxe discret typique de la Côte d’Azur, où la lumière et l’horizon deviennent des éléments clés de l’expérience résidentielle. L’emploi de matériaux comme le béton enduit, les menuiseries en aluminium noir et les éléments métalliques recyclés souligne une quête d’authenticité et de durabilité.
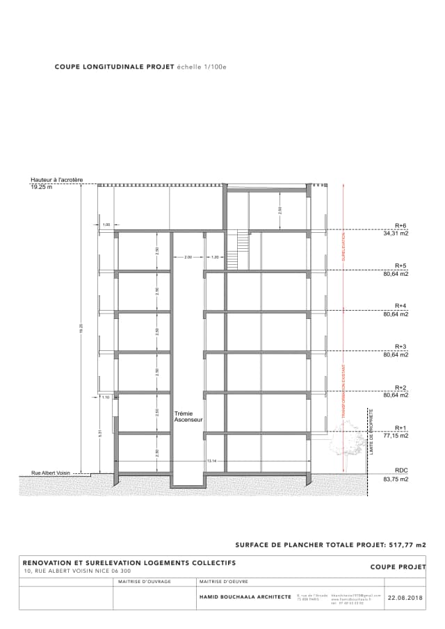
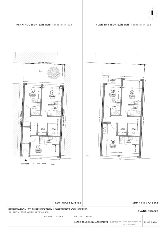
L’organisation des espaces reflète une conception intelligente et fonctionnelle. Le rez-de-chaussée, pensé comme un espace d’accueil chaleureux et contemporain, intègre des matériaux nobles tels que le bois et le marbre pour créer une ambiance sophistiquée. À l’arrière, un logement indépendant offre calme et intimité grâce à une terrasse ou une cour privée. Les étages intermédiaires abritent deux appartements spacieux par niveau, chacun baigné de lumière naturelle grâce à de larges baies vitrées et prolongé par des balcons filants. Ces logements, aménagés avec des matériaux comme le parquet en bois et des textiles méditerranéens légers, associent confort moderne et charme local. Le dernier étage, réservé aux logements premium, se distingue par des terrasses privées conçues comme des extensions des espaces de vie, offrant des panoramas imprenables et une organisation intérieure fluide qui privilégie la luminosité.
L’approche sémiologique du projet témoigne d’une compréhension fine des signes architecturaux de Nice. Les matériaux, proportions et textures évoquent subtilement l’histoire locale, tout en intégrant des éléments contemporains pour une modernisation respectueuse. L’architecture exprime une atmosphère méditerranéenne, avec des terrasses ouvertes, des balcons filants, et une lumière omniprésente qui renforcent l’attractivité du bâtiment. Chaque logement, unique dans son aménagement, s’inscrit dans une vision globale cohérente, où tradition et modernité dialoguent avec équilibre.
La dimension durable du projet se traduit par un choix judicieux de matériaux locaux et écologiques. L’enduit à la chaux, les menuiseries performantes et les éléments métalliques recyclés minimisent l’empreinte environnementale du bâtiment. L’isolation thermique par l’intérieur améliore le confort des résidents tout en respectant la structure existante. Des panneaux photovoltaïques discrets installés sur la toiture terrasse participent à l’optimisation énergétique, tandis que le double vitrage garantit une efficacité thermique et acoustique. Les espaces extérieurs, agrémentés de végétaux typiquement méditerranéens comme les oliviers et la lavande, ajoutent une touche d’authenticité tout en participant à la fraîcheur et au bien-être des lieux.
La Renaissance Moderne Niçoise s’inscrit comme un exemple remarquable d’intégration réussie entre tradition et modernité. Ancré dans l’histoire urbaine de Nice, ce projet transcende son rôle fonctionnel pour devenir un manifeste d’architecture méditerranéenne contemporaine. Avec ses lignes sobres et lumineuses, ses balcons graphiques et ses terrasses panoramiques, cet immeuble offre à ses résidents une expérience unique, où confort moderne et héritage local se rencontrent. À travers cette réalisation, Studio HB démontre que l’architecture peut célébrer le passé tout en regardant résolument vers l’avenir, faisant de cet immeuble une véritable icône de la renaissance architecturale niçoise.
Type d’Information
Architecture Résidentielle Touristique et Contextuelle : Ce projet explore la modernisation d’un bâtiment existant en respectant l’identité architecturale locale tout en intégrant des solutions contemporaines pour un usage optimisé.
Détails du Projet
1. Analyse contextuelle et insertion spatiale
• Environnement urbain niçois :
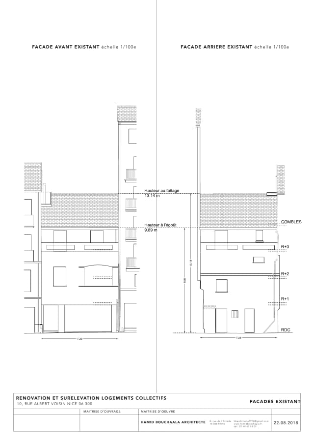
• L’immeuble s’insère dans un quartier caractérisé par des petits immeubles aux façades colorées et rythmiques, souvent ornés de balcons et de persiennes.
• L’objectif est de conserver une harmonie avec l’architecture locale tout en modernisant l’aspect et les fonctionnalités de l’immeuble pour répondre aux attentes d’un public touristique.
• Respect des proportions et alignements :
• Le projet s’appuie sur les gabarits et les alignements existants pour maintenir la cohérence avec le tissu urbain environnant.
2. Expression architecturale
• Volumétrie et esthétique :
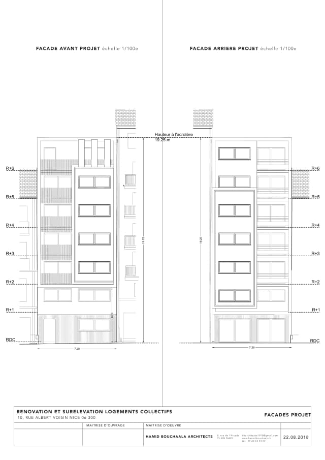
• La façade principale, sobre et élégante, est traitée avec un enduit à la chaux de couleur blanche, rappelant les tons clairs et lumineux propres à l’architecture méditerranéenne.
• Les balcons filants avec garde-corps en métal blancs aux lignes droites apportent une touche contemporaine.
• Le dernier niveau, conçu en retrait, abrite une terrasse ouverte, offrant des vues panoramiques sur la ville et la Méditerranée.
• Matériaux et textures :
• Enduit à la chaux : Appliqué en finition lisse, il donne à la façade un aspect traditionnel tout en répondant aux normes contemporaines.
• Métal blanc : Utilisé pour les garde-corps et les cadres de fenêtres, il apporte un contraste moderne et épuré.
• Menuiseries en aluminium : Intégrées pour leurs performances énergétiques et leur esthétique minimaliste.
3. Organisation fonctionnelle
• Rez-de-chaussée : Accueil et logement
• Espace de réception :
• Situé à l’avant, cet espace est conçu pour accueillir les touristes avec une ambiance chaleureuse et contemporaine.
• Une attention particulière a été portée à l’aménagement, avec des matériaux durables comme le bois et le marbre pour refléter l’élégance de l’immeuble.
• Appartement arrière :
• Un logement indépendant avec accès direct à une petite cour ou terrasse, offrant intimité et calme.
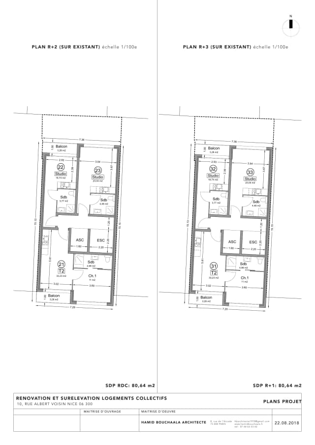
• Étages intermédiaires : Logements touristiques
• Chaque étage accueille deux appartements spacieux, conçus pour offrir confort et fonctionnalité.
• certains appartements disposent de balcons , maximisant la lumière naturelle et les vues sur le quartier.
• Les intérieurs sont aménagés avec des matériaux naturels (parquet, pierre) et des touches méditerranéennes (textiles légers, couleurs claires).
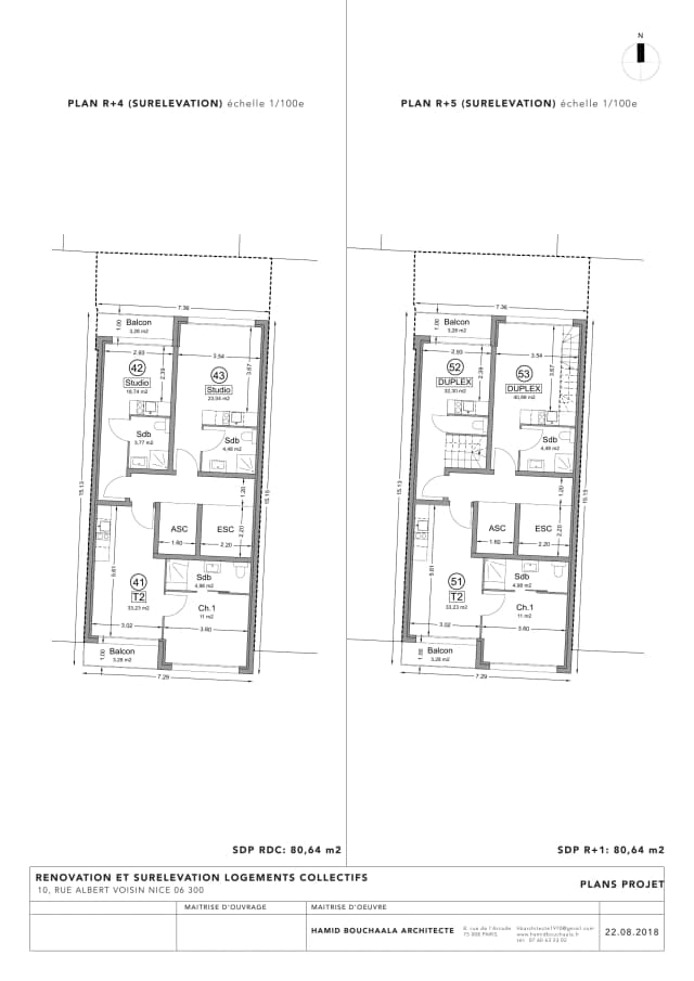
• Dernier étage : Espaces premium
• Terrasses privées :
• Les logements du dernier niveau bénéficient de terrasses spacieuses, équipées pour des moments de détente avec vue sur la ville et les environs.
• Une organisation fluide et des ouvertures généreuses renforcent la sensation d’espace et de luminosité.
4. Approche sémiologique
• Dialogue entre tradition et modernité :
• Le choix des matériaux et des couleurs établit un lien avec l’histoire et l’identité niçoises, tandis que les lignes épurées et les détails contemporains reflètent une modernisation respectueuse.
• Ambiance méditerranéenne :
• La lumière naturelle, les terrasses ouvertes, et les balcons filants créent une atmosphère typique de la région, renforçant l’attractivité de l’immeuble pour une clientèle touristique.
• Unité et singularité :
• Chaque logement est pensé pour être unique tout en s’intégrant dans une esthétique globale cohérente et élégante.
5. Construction et durabilité
• Matériaux locaux et écologiques :
• L’utilisation de l’enduit à la chaux, des menuiseries performantes, et des éléments en métal recyclé assure une empreinte écologique réduite.
• Isolation thermique par l’intérieur pour respecter la structure existante tout en améliorant les performances énergétiques.
• Optimisation énergétique :
• Fenêtres à double vitrage pour limiter les pertes de chaleur en hiver et maintenir une température agréable en été.
6. Espaces extérieurs et paysagers
• Balcons filants et terrasses :
• Conçus comme des extensions des espaces de vie, ils offrent une connexion visuelle avec l’extérieur tout en apportant une touche de luxe aux logements.
• Végétalisation :
• Les terrasses sont ponctuées de plantes méditerranéennes (oliviers, lavande) pour renforcer l’identité locale et apporter de la fraîcheur.
7.Contexte Environnant
1. Nice et son identité urbaine :
• Le projet s’inscrit dans une ville où l’architecture joue un rôle clé dans l’identité culturelle et touristique. L’immeuble respecte les proportions et les codes visuels du quartier tout en affirmant une modernité élégante.
2. Tourisme et confort :
• En tant que résidence touristique, l’immeuble est conçu pour offrir une expérience unique et mémorable, tout en répondant aux attentes d’une clientèle exigeante.
Conclusion
“La Renaissance Moderne Niçoise” est un projet de rénovation et de modernisation qui conjugue tradition niçoise et design contemporain. Conçu par Studio HB pour FP Invest, cet immeuble de six niveaux se distingue par son élégance sobre, sa fonctionnalité optimisée, et son intégration harmonieuse dans le paysage urbain. Avec son enduit à la chaux blanche, ses balcons filants, et ses terrasses panoramiques, il incarne une architecture respectueuse du passé et tournée vers l’avenir, offrant aux résidents une expérience unique et raffinée au cœur de Nice.


















