“La Bulle Zénithale”
“La Bulle Zénithale” est un projet de réaménagement et restructuration d’un appartement sous les combles dans un immeuble haussmannien situé dans le VIIIe arrondissement de Paris. Conçu par Studio HB, le projet répond à la demande d’une cliente travaillant chez Goldman Sachs, cherchant à transformer cet espace en un havre de paix au cœur de la ville. L’exercice repose sur l’intégration de verrières de toiture à plusieurs pentes en métal noir, apportant une lumière zénithale généreuse dans l’espace de réception, tout en respectant les contraintes strictes des Architectes des Bâtiments de France. Ce projet s’inscrit dans une démarche de contextualisme architectural et sémiologique, offrant une atmosphère intime, lumineuse, et acoustiquement confortable.
La Bulle Zénithale est une réinvention architecturale d’un appartement niché sous les combles d’un immeuble haussmannien dans le VIIIe arrondissement de Paris, une composition pensée comme un havre de lumière et de sérénité au cœur de l’effervescence urbaine. Le projet, signé par Studio HB, répond à la volonté de sa cliente, une professionnelle de Goldman Sachs, de transformer cet espace atypique en un sanctuaire intime, baigné par une lumière zénithale et protégé du tumulte de la ville. En conjuguant modernité et respect du patrimoine, l’intervention introduit des verrières à plusieurs pentes en métal noir, une solution qui s’intègre harmonieusement dans le paysage des toits de Paris tout en répondant aux contraintes imposées par les Architectes des Bâtiments de France.
La lumière devient ici un matériau à part entière, pénétrant généreusement dans les espaces grâce aux verrières qui semblent flotter au-dessus des volumes existants. Ces structures métalliques fines et élancées évoquent la géométrie des toits parisiens tout en apportant une touche contemporaine. Les verrières, organisées en pentes multiples, jouent avec la lumière pour créer des ombres changeantes et une diffusion douce, transformant chaque instant de la journée en une expérience sensorielle unique. À l’intérieur, les matériaux choisis – bois clair, métal noir et pierre naturelle – dialoguent subtilement avec les éléments d’origine du bâtiment, tels que les moulures préservées et les parquets d’époque, pour établir une continuité entre passé et présent.
Le cœur du projet réside dans l’espace de réception, une pièce ouverte et lumineuse où les verrières zénithales confèrent une dimension aérienne. Une cheminée contemporaine au bioéthanol, intégrée dans un mur de pierre claire, devient un point focal, apportant chaleur et convivialité. La cuisine, conçue dans la continuité de cet espace, s’articule autour d’un îlot central en marbre blanc veiné, conjuguant esthétique et fonctionnalité. Les rangements, habillés de bois clair et de détails métalliques noirs, établissent une cohérence visuelle avec les verrières, tandis que les appareils intégrés garantissent une discrétion parfaite.
La suite parentale, située dans un espace plus intime, est pensée comme un cocon. Sous un plafond incliné qui préserve les volumes d’origine des combles, la chambre bénéficie d’une lumière naturelle délicate grâce à une fenêtre de toit orientée vers le ciel. La salle de bain attenante, réalisée en pierre et marbre, propose une douche à l’italienne et une baignoire encastrée placée sous une ouverture vitrée, offrant une expérience de détente unique avec une vue directe sur les nuages et les étoiles. À proximité, un espace de travail discret, baigné par une lumière douce provenant d’une petite verrière orientée à l’est, offre un cadre propice à la concentration.
L’ensemble du projet repose sur une attention particulière à l’acoustique et au confort. Les nuisances sonores urbaines sont maîtrisées grâce à l’utilisation de vitrages acoustiques haute performance et de matériaux absorbants, tels que des panneaux muraux en textile et des planchers flottants. L’ambiance sonore intérieure, feutrée et apaisante, est renforcée par un traitement acoustique intégré, garantissant une sensation de quiétude. Ce soin au détail se prolonge dans les choix durables : des verrières en métal recyclé et des matériaux écologiques, comme le bois certifié FSC et les peintures à faible émission de COV, assurent un impact environnemental réduit tout en offrant un intérieur sain et raffiné.
Ancré dans le paysage emblématique du VIIIe arrondissement, “La Bulle Zénithale” respecte les codes visuels imposés par son environnement. L’expression contemporaine des verrières, associée à une intégration discrète mais affirmée dans les toits parisiens, reflète une compréhension fine du contexte patrimonial. L’appartement, conçu comme une bulle protectrice, devient un espace où la lumière, la modernité et la tradition dialoguent harmonieusement, créant un équilibre parfait entre intimité et ouverture. À travers cette réalisation, Studio HB illustre une vision architecturale qui dépasse les contraintes pour transformer un lieu en une expérience de vie lumineuse et intemporelle.
Type d’Information
Architecture Intérieure et Réhabilitation Patrimoniale : Le projet explore les interactions entre la lumière, la fonctionnalité moderne, et le respect du patrimoine haussmannien.
Détails du Projet
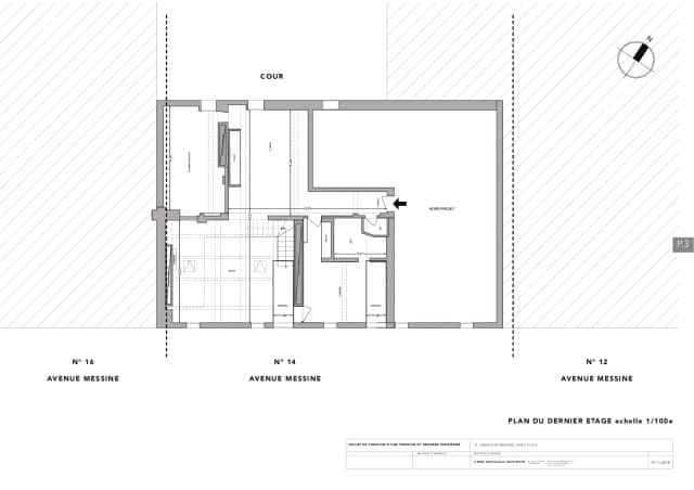
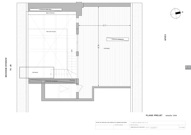
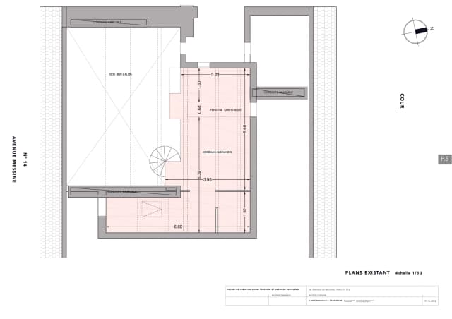
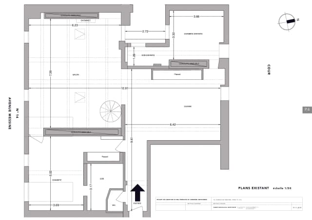
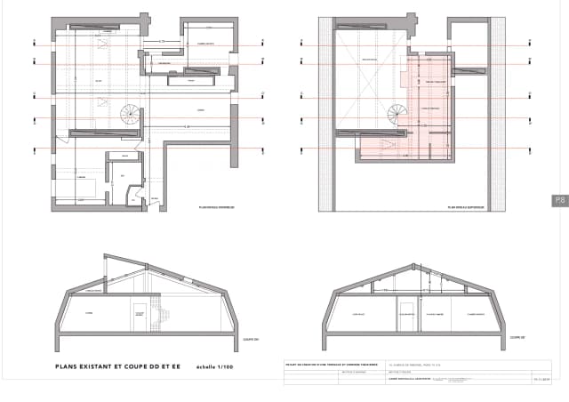
1. Analyse contextuelle et insertion spatiale
• Immeuble haussmannien :
• Les combles offrent un volume atypique avec une forte pente de toit et des espaces confinés.
• Le projet a dû respecter les proportions, matériaux, et lignes de la façade existante, pour obtenir l’approbation des Architectes des Bâtiments de France (ABF).
• Lumière et intimité :
• Les verrières ont été conçues pour maximiser la lumière naturelle sans compromettre l’intimité de la cliente.
• Acoustique et confort :
• L’isolation phonique était essentielle, tant pour bloquer les bruits urbains que pour assurer une tranquillité à l’intérieur des espaces de vie.
2. Expression architecturale
• Verrières à plusieurs pentes :
• Les verrières, réalisées en métal noir avec des cadres fins, apportent une esthétique contemporaine qui contraste subtilement avec les matériaux traditionnels de l’immeuble.
• Leur composition à plusieurs pentes crée un jeu de volumes et d’ombres, rappelant les toits parisiens tout en offrant une lumière douce et diffuse.
• Matériaux et textures :
• Bois clair : Utilisé pour les planchers et certains éléments de mobilier, apportant une chaleur naturelle à l’espace.
• Métal noir : Présent dans les verrières et certains détails (garde-corps, luminaires), soulignant la modernité du design.
• Pierre et marbre : Intégrés dans la cuisine et les salles de bain, renforçant le caractère haut de gamme du projet.
• Tissus acoustiques : Revêtements muraux et panneaux décoratifs en textile absorbant, pour améliorer le confort sonore.
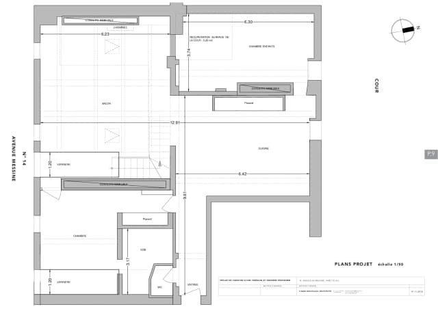
3. Organisation fonctionnelle
• Espace de réception :
• Lumière zénithale : Le salon et la salle à manger sont baignés de lumière naturelle grâce aux verrières, créant une atmosphère apaisante et aérienne.
• Cheminée contemporaine : Une cheminée au bioéthanol, intégrée dans un mur en pierre claire, devient un point focal chaleureux.
• Cuisine moderne :
• Située dans la continuité de l’espace de réception, elle est équipée d’un îlot central en marbre blanc veiné, combinant fonctionnalité et esthétique.
• Les rangements en bois clair et métal noir harmonisent l’espace avec les verrières.
• Suite parentale :
• Un espace intime et isolé, avec un plafond légèrement incliné pour conserver le volume d’origine des combles.
• Salle de bain attenante, avec douche à l’italienne et baignoire encastrée sous une fenêtre de toit pour une vue sur le ciel.
• Espace de travail :
• Un bureau discret, éclairé naturellement par une petite verrière orientée à l’est, offrant une ambiance propice à la concentration.
4. Approche sémiologique
• Lumière comme matériau :
• La lumière zénithale devient un élément central du projet, exprimant une connexion avec le ciel parisien tout en créant un sentiment d’ouverture et de sérénité.
• Dialogue entre ancien et moderne :
• Le contraste entre les verrières en métal noir et les éléments haussmanniens (moulures préservées, parquet d’époque) reflète une réinterprétation contemporaine de l’histoire du lieu.
• La bulle architecturale :
• L’appartement est conçu comme une bulle intime, où l’isolation acoustique et la lumière naturelle offrent un refuge dans un environnement urbain dense.
5. Acoustique et confort
• Isolation phonique :
• Des matériaux absorbants (panneaux muraux en textile, planchers flottants) ont été utilisés pour réduire les nuisances sonores venant de l’extérieur et des pièces voisines.
• Matériaux techniques :
• Fenêtres et verrières équipées de vitrages acoustiques et thermiques haute performance.
• Ambiance sonore :
• Une acoustique maîtrisée qui favorise le calme, même au cœur d’un environnement vibrant comme le VIIIe arrondissement.
6. Construction et durabilité
• Verrières :
• Métal recyclé et verre à haute performance énergétique, limitant les pertes thermiques tout en maximisant la lumière naturelle.
• Récupération de la chaleur :
• Systèmes de ventilation intégrés pour optimiser la température intérieure tout en assurant une bonne circulation de l’air.
• Choix durables :
• Bois certifié FSC et peinture écologique à faible émission de COV pour un intérieur sain et respectueux de l’environnement.
7.Contexte Environnant
1. Quartier du VIIIe arrondissement :
• Situé dans un quartier prestigieux de Paris, le projet devait respecter les codes visuels imposés par les Architectes des Bâtiments de France.
2. Toits parisiens :
• Les verrières s’intègrent harmonieusement dans le paysage emblématique des toits de Paris, tout en apportant une touche de modernité discrète.
Conclusion
“La Bulle Zénithale” est un projet qui réinvente un appartement sous les combles en un refuge lumineux et acoustiquement isolé. Avec ses verrières à plusieurs pentes en métal noir, son équilibre entre modernité et tradition, et son attention au confort, il incarne une vision contemporaine et élégante du luxe parisien. Studio HB a su relever le défi de respecter les contraintes patrimoniales tout en créant un espace de vie intime et intemporel.




































