“Métamorphose Lumineuse : Résonance Art Déco et Enveloppe Bioclimatique à Miami Beach”
À quelques pas de l’emblématique Ocean Drive, cet hôtel construit en 1975 s’apprête à renaître sous une nouvelle forme, réinterprétant l’héritage Art Déco de Miami Beach tout en s’inscrivant dans une dynamique contemporaine et bioclimatique. L’intervention repose sur un principe de contextualisme réinterprété, où la composition des façades dialogue avec le passé tout en embrassant des solutions innovantes. Le bâtiment devient un signal urbain, une lanterne moderne qui capte et diffuse l’énergie vibrante de la ville. Conserver la structure existante tout en métamorphosant son enveloppe, tel est le pari de cette réhabilitation qui transforme l’édifice en un organisme vivant, rythmé par la lumière et l’ombre.
L’enveloppe du bâtiment se déploie comme une double peau dynamique où chaque élément joue un rôle fonctionnel et esthétique. Une treille en cuivre perforé, véritable dentelle métallique, vient habiller les façades, projetant des ombres mouvantes au fil des heures, tandis que les brise-soleil verticaux, sculptés dans l’esprit des motifs géométriques Art Déco, filtrent la lumière et structurent la façade. À cela s’ajoutent des panneaux de composites biologiques, matérialité innovante intégrant des composants biosourcés, offrant une alternative durable et performante sur le plan thermique. La façade devient ainsi une surface vibrante, en constante mutation sous l’effet du soleil de Miami, résonnant à la fois avec l’histoire architecturale de la ville et avec l’avant-gardisme du projet.
L’entrée de l’hôtel, véritable mise en scène immersive, se veut un marqueur urbain, un seuil entre la ville et un univers feutré. Un portique monumental en cuivre, structurant l’espace, capte immédiatement le regard et affirme une identité forte. La transparence entre intérieur et extérieur est soigneusement maîtrisée, amplifiant l’effet de profondeur et instaurant un dialogue entre la rue et le hall majestueux. Ce dernier, pensé comme un écrin, conjugue l’artisanat et le design contemporain : marbre tropical, luminaires en laiton patiné suspendus en constellation, touches végétales subtilement intégrées, le tout baigné dans une lumière tamisée qui sculpte l’espace et invite à l’expérience sensorielle. Chaque détail est conçu pour éveiller les sens et installer un sentiment de luxe discret et exclusif dès le premier instant.
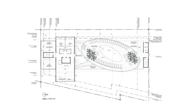
Le rez-de-chaussée s’affirme comme un lieu de rencontre et de vie, un espace où se conjuguent détente et gastronomie. Le lobby, inspiré des salons d’hôtels mythiques, se déploie dans une palette élégante, où l’éclairage feutré et les assises enveloppantes offrent un confort raffiné. Le restaurant signature, ouvert sur l’extérieur, célèbre la cuisine locale dans un cadre raffiné où se rencontrent l’Art Déco et une approche contemporaine du design. À quelques pas, un bar mixologie conçu comme un bijou d’architecture, où les reflets des miroirs et les lignes sculpturales du comptoir créent une atmosphère intimiste et festive. L’ensemble compose un espace hybride, où le luxe et l’énergie vibrante de Miami Beach fusionnent.
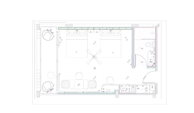
Des niveaux 1 à 6, l’hôtel déploie une gamme de chambres et suites, du studio sophistiqué à la suite présidentielle, chacune pensée comme une bulle de raffinement et de sérénité. Matériaux et textures s’équilibrent dans une harmonie subtile entre minimalisme contemporain et réminiscences Art Déco. Les murs texturés, les plafonds travaillés et les jeux de lumière indirecte composent une atmosphère feutrée, tandis que de larges baies vitrées maximisent les ouvertures et offrent des panoramas spectaculaires sur l’océan et la ville. L’acoustique est minutieusement étudiée pour garantir un havre de paix, une bulle d’exclusivité dans l’effervescence de Miami.
Mais c’est au sommet que l’expérience atteint son apogée. Le dernier étage se transforme en une oasis suspendue, où luxe et horizon se rejoignent dans un équilibre parfait. Une piscine à débordement, filant vers l’infini, prolonge la ligne d’horizon et dialogue avec le bleu du ciel et de la mer. Autour, un rooftop bar, inspiré des grandes adresses de Miami, déploie un design sculptural et une ambiance immersive où se croisent résidents et noctambules. Des terrasses végétalisées s’imbriquent en strates, créant des espaces de contemplation et de détente, où le confort rencontre la nature dans une atmosphère apaisante en plein ciel. Ce rooftop devient un lieu iconique, un aimant social et festif où l’énergie de Miami se concentre et se diffuse.
Cet hôtel, plus qu’un simple lieu d’hébergement, se dresse comme un manifeste de l’art de vivre à Miami, où architecture et fête se conjuguent dans une célébration lumineuse de la ville. Entre héritage et innovation, il incarne un nouvel équilibre, où la mémoire Art Déco se métamorphose sous l’impulsion des matériaux bioclimatiques et des exigences contemporaines du luxe. La lumière et la matière y composent une partition en perpétuelle évolution, jouant avec le soleil, l’ombre et les reflets de la ville. Chaque espace, chaque détail, chaque perspective a été pensé pour offrir une immersion totale dans l’âme vibrante de Miami Beach, transformant cet hôtel en une icône architecturale où se rencontrent l’excellence hôtelière, l’énergie urbaine et la sensualité du design.
“Métamorphose Lumineuse : Résonance Art Déco et Enveloppe Bioclimatique à Miami Beach”
1. Contexte et Philosophie du Projet
Situé à quelques pas de l’emblématique Ocean Drive, cet hôtel construit en 1975 est aujourd’hui en quête d’une renaissance architecturale qui s’inscrit dans un double registre :
- Un ancrage contextuel fort, respectant et réinterprétant les codes du Mouvement Art Déco qui fait l’identité de Miami Beach.
- Une transformation radicale, intégrant des matériaux contemporains, durables et une signature architecturale résolument tournée vers l’avenir.
L’intervention repose sur un principe de contextualisme réinterprété, où la composition des façades dialogue avec les codes Art Déco tout en les réinterprétant à travers des matériaux et des solutions bioclimatiques innovantes. L’hôtel devient ainsi un signal urbain, un phare lumineux dans l’effervescence festive de Miami.
2. Stratégie de Réhabilitation et Restructuration
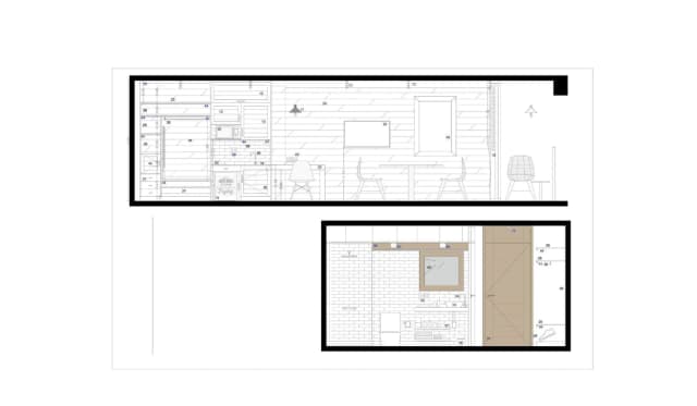
Le projet repose sur la conservation de la structure porteuse existante tout en transformant intégralement son enveloppe et ses espaces intérieurs.
2.1. Façades et Enveloppe Bioclimatique
L’enveloppe du bâtiment est pensée comme une double peau dynamique, jouant à la fois un rôle esthétique et fonctionnel :
- Treille en cuivre perforé : un maillage organique vient envelopper les façades, offrant des jeux d’ombre et de lumière tout en protégeant du soleil. Avec le temps, cette peau prendra une patine naturelle, évoluant avec l’environnement.
- Brise-soleil verticaux sculptés : inspirés des lignes géométriques de l’Art Déco, ils filtrent la lumière et rythment la façade tout en assurant un confort thermique optimal.
- Façades en composites biologiques : une matérialité innovante intégrant des composants biosourcés, alliant esthétique et performance thermique, participant à la transition écologique du projet.
Le résultat est une façade vibrante, captant la lumière du soleil de Miami, changeant d’aspect selon l’heure du jour, et offrant une résonance visuelle entre l’histoire architecturale de la ville et l’avant-gardisme du projet.
3. Une Expérience Sensorielle dès l’Entrée : L’Accueil comme Signal Urbain
L’entrée de l’hôtel devient une mise en scène immersive, un véritable signal urbain :
- Un portique monumental en cuivre structuré marque l’accès à l’hôtel, captant le regard et affirmant une identité forte.
- Une transparence maîtrisée entre intérieur et extérieur, intégrant un jeu d’ombres et de reflets, amplifiant l’effet de profondeur.
- Un hall majestueux, où l’artisanat rencontre le design contemporain : des matériaux nobles comme le marbre tropical, des luminaires suspendus en laiton patiné, et des touches végétales subtilement intégrées.
L’espace d’accueil est pensé comme un lieu d’émotion et d’exclusivité, avec une approche ultra-personnalisée du service, garantissant une expérience inoubliable dès les premiers instants.
4. Un Lobby Haute-Couture et des Espaces de Vie Élégants
Le rez-de-chaussée devient un espace de rencontre, de détente et de découverte gastronomique :
- Un lobby aux standards haut de gamme, inspiré des salons d’hôtel mythiques, avec des assises enveloppantes et une lumière tamisée sculptant l’espace.
- Un restaurant signature, ouvert sur l’extérieur, où l’on célèbre la cuisine locale avec une touche internationale, dans un cadre raffiné et immersif.
- Un bar mixologie, où l’Art Déco se reflète à travers un comptoir sculptural et des jeux de miroirs inspirés des grands établissements des années 30.
L’ensemble de ces espaces crée une atmosphère chic et festive, où le luxe se conjugue avec l’énergie vibrante de Miami Beach.
5. Un Habitat de Luxe et Modulaire : Chambres et Suites
Des niveaux 1 à 6, l’hôtel propose une gamme de chambres allant du studio sophistiqué à la suite présidentielle.
- Matériaux et textures : un équilibre entre minimalisme contemporain et influences Art Déco, avec des murs texturés, des plafonds travaillés et des jeux de lumière indirecte.
- Ouvertures maximisées : des baies vitrées généreuses offrent des vues panoramiques sur l’océan et la ville, connectant intérieur et extérieur.
- Un confort acoustique optimisé, pour offrir une bulle de tranquillité au cœur de l’effervescence de Miami.
Chaque chambre devient une expérience immersive, où le design épouse la fonctionnalité pour offrir une hospitalité d’exception.
6. Un Rooftop d’Exception : Piscine et Horizon Infini
Le dernier étage est conçu comme une oasis suspendue, où luxe et panorama se rencontrent :
- Une piscine à débordement, effleurant l’horizon et offrant une vue imprenable sur l’océan.
- Un rooftop bar, inspiré des rooftops mythiques de Miami, avec un design sculptural, un mobilier raffiné et une ambiance musicale immersive.
- Un lounge en terrasses végétalisées, où le confort rencontre la nature pour une atmosphère apaisante en plein ciel.
Ce roof-top devient un lieu iconique, véritable pôle d’attractivité sociale et nocturne, où se croisent les résidents de l’hôtel et les habitués des nuits festives de Miami Beach.
7. Un Hôtel-Manifeste : Luxe, Fête et Expérience Sensorielle
Cet hôtel ne sera pas simplement un lieu d’hébergement, mais un manifeste de la culture festive et solaire de Miami :
- Une architecture entre héritage et innovation, faisant écho à l’Art Déco tout en intégrant des matériaux bioclimatiques.
- Un jeu de lumière et de matière qui transforme l’hôtel en une œuvre vivante, évoluant au gré des reflets du soleil et de la ville.
- Une expérience immersive et haut de gamme, où chaque détail est pensé pour offrir un confort absolu et une immersion dans l’âme vibrante de Miami Beach.
Le projet propose ainsi une nouvelle icône architecturale, où l’énergie de la ville, l’art de vivre et l’excellence hôtelière se conjuguent dans une métamorphose lumineuse et festive.


















































