SYMBIOSE INDUSTRIELLE : UN ENTREPOSAGE RÉINTERPRÉTÉ DANS LE CONTEXTE TERTIAIRE
L’entreprise RB CONSTRUCTION, spécialisée dans les travaux du bâtiment pour le secteur tertiaire, confie à Studio HB la conception de son nouvel entrepôt à Brenouille, dans l’Oise. Établi sur un ancien terrain agricole plat, le projet interroge la manière dont un espace vierge, marqué par son passé rural, peut être réinterprété en un lieu hybride, où la rigueur fonctionnelle du stockage cohabite avec l’exigence contemporaine d’un cadre de travail stimulant. Le projet s’inscrit dans une démarche de contextualisme architectural et sémiologique, explorant le dialogue entre le passé agricole du site et l’identité industrielle revendiquée par la société, traduisant ainsi une transition entre le travail manuel du bâtiment et l’organisation tertiaire de la gestion et de la conception des projets.
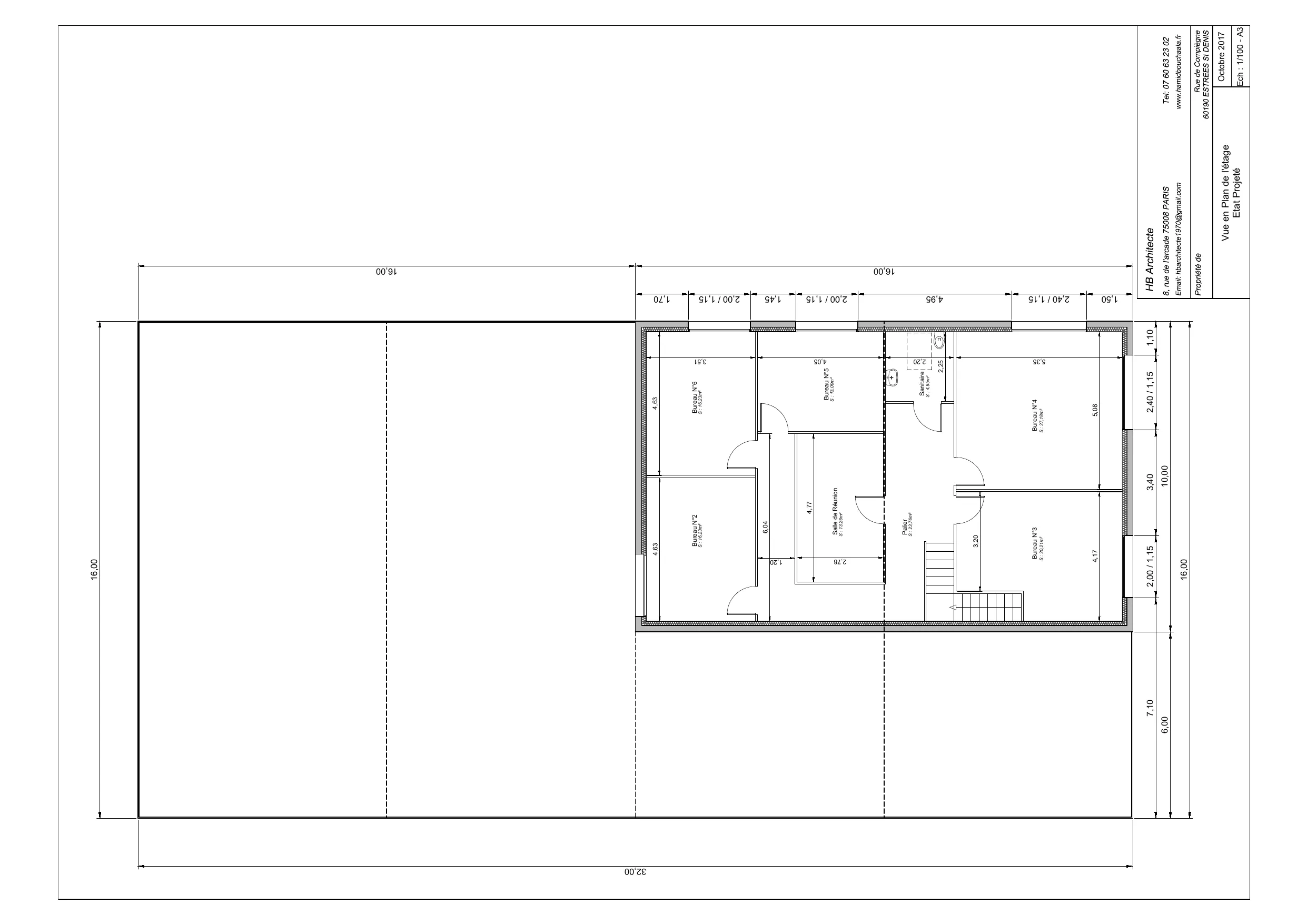
L’écriture architecturale repose sur une double approche, mêlant pragmatisme logistique et atmosphère travaillée. L’ordonnancement des espaces s’articule en deux pôles distincts, mais interconnectés : une zone d’entreposage, pensée selon une grille fonctionnelle rigoureuse, où le matériel de chantier trouve un emplacement clair et rationnel, avec une trame modulaire de racks et des circulations étudiées pour une manipulation fluide. En écho, les bureaux, insérés en modules autonomes, s’implantent en périphérie ou en suspension sur mezzanine, créant un jeu de volumes flottants qui dynamise l’espace et réinterprète l’archétype de l’entrepôt. Cette stratification spatiale permet de relier les sphères administratives et opérationnelles, fluidifiant les échanges et renforçant la synergie entre les équipes.
L’identité architecturale s’affirme dans un dialogue entre rigueur industrielle et chaleur du matériau, où la froideur du métal se laisse adoucir par la présence du bois. L’ossature en acier galvanisé impose une présence massive et structurante, tandis que le bardage en bois naturel et le béton brut viennent atténuer cette rigidité, inscrivant le projet dans la mémoire du lieu. Les verrières et ouvertures généreuses injectent un bain de lumière naturelle, atténuant l’effet d’enfermement inhérent aux architectures industrielles classiques. Les plafonds aux poutres apparentes, ponctués de luminaires suspendus, accentuent cette esthétique brute et assumée, conférant à l’ensemble une légèreté visuelle qui contraste avec la fonction de stockage. Ce jeu de textures et de matérialités crée une ambiance à la fois industrielle et accueillante, où la rigueur du lieu de stockage se dissout dans une scénographie spatiale fluide et contemporaine.
Pensé dans une logique de flexibilité et d’adaptabilité, l’entrepôt intègre une série de bureaux modulaires préfabriqués, capables d’évoluer avec le temps. Ces modules sont déplaçables, extensibles ou réduits selon les nécessités de l’entreprise, affirmant ainsi une approche évolutive du bâtiment. La mezzanine devient un levier spatial essentiel, permettant de libérer l’espace au sol tout en créant une stratification des usages, tandis qu’un jeu de transparence par des cloisons vitrées favorise la communication tout en préservant l’intimité acoustique des espaces de travail. L’enjeu est de dépasser la simple fonctionnalité pour proposer une scénographie architecturale où les bureaux semblent suspendus, en tension entre l’industrie et le tertiaire.
L’architecture de cet entrepôt ne saurait être dissociée de la performance environnementale et énergétique, traduisant une approche éco-responsable où la sobriété technique devient un outil esthétique et fonctionnel. L’isolation thermique optimisée à travers des panneaux sandwich performants garantit une inertie thermique adaptée, réduisant les besoins énergétiques. La récupération des eaux pluviales pour les sanitaires et l’entretien des extérieurs, la ventilation naturelle couplée à des brise-soleil, ainsi que l’éclairage LED avec capteurs de présence, forment un ensemble de dispositifs qui traduisent une volonté de réduire l’empreinte écologique du projet. Loin d’être un simple entrepôt, ce bâtiment s’affirme comme un manifeste d’efficience spatiale et énergétique, renouant avec une architecture frugale et raisonnée en écho au passé agricole du site.
Ainsi, Studio HB propose une vision renouvelée du bâtiment industriel, où le stockage cesse d’être un simple espace fonctionnel pour devenir un cadre de travail repensé et incarné. En intégrant une lecture sémiologique forte, l’architecture dialogue avec la mémoire du site tout en affirmant une esthétique propre au monde industriel, où matière, lumière et modularité composent une narration spatiale cohérente. Plus qu’un entrepôt, ce projet devient un territoire d’interaction, où les strates de l’industrie, du tertiaire et du paysage environnant s’imbriquent dans un équilibre subtil entre pragmatisme et identité architecturale.
SYMBIOSE INDUSTRIELLE : UN ENTREPOSAGE RÉINTERPRÉTÉ DANS LE CONTEXTE TERTIAIRE
1. Contexte et Enjeux du Projet
L’entreprise [Nom de la société], spécialisée dans les travaux du bâtiment pour le secteur tertiaire, a confié à Studio HB la conception et la réalisation de son nouvel entrepôt à Brenouille, dans l’Oise. Situé sur un ancien terrain agricole plat, ce projet vise à transformer une parcelle vierge en un lieu fonctionnel où se rencontrent stockage de matériel et espaces de bureaux.
Dans une démarche de contextualisme architectural et sémiologique, le projet cherche à établir un dialogue entre l’histoire du site – marqué par son passé agricole – et l’identité industrielle revendiquée par la société. Il s’agit d’exprimer la transition entre le monde du travail manuel (l’industrie du bâtiment) et le tertiaire (les bureaux de gestion et de conception des projets) à travers une mise en scène spatiale cohérente et lisible.
2. Concept Architectural : Entre Modulaire et Ambiance Industrielle
Le parti pris architectural repose sur une double approche :
- Une fonctionnalité optimisée pour le stockage et la logistique.
- Une atmosphère chaleureuse et identitaire pour les espaces de travail.
2.1. L’Ordonnancement des Espaces
L’entrepôt est pensé selon une organisation rationnelle, divisée en deux pôles distincts mais interconnectés :
- La zone d’entreposage, conçue selon un schéma clair et ergonomique, facilite le stockage et la manipulation du matériel de chantier. Elle est structurée autour d’une trame modulaire de racks et de circulations optimisées pour le passage des engins de manutention.
- Les bureaux, implantés en modules suspendus ou en périphérie, offrent une lecture dynamique de l’espace et se démarquent visuellement tout en restant en interaction avec l’entrepôt.
Cette disposition permet une connexion fluide entre les zones d’administration et les zones opérationnelles, favorisant ainsi une synergie entre les équipes.
2.2. Une Signature Architecturale entre Industrie et Chaleur
Le projet revendique une esthétique industrielle revisitée, où les matériaux bruts sont mis en dialogue avec des éléments chaleureux pour créer un cadre de travail accueillant et stimulant :
- Structure métallique apparente : ossature en acier galvanisé, inspirée des grandes halles industrielles.
- Bardage en bois naturel et béton brut : une matérialité qui vient adoucir l’aspect rigide du métal et évoquer la mémoire du site agricole d’antan.
- Verrières et ouvertures généreuses : pour apporter un maximum de lumière naturelle, réduisant ainsi l’effet d’enfermement souvent ressenti dans les espaces industriels.
- Plafonds avec poutres métalliques et luminaires suspendus : accentuant le caractère industriel tout en assurant une luminosité homogène et maîtrisée.
Le contraste entre ces matières crée une ambiance cosy et contemporaine, où l’image du lieu de stockage s’efface au profit d’un espace hybride, entre industrie et tertiaire.
3. Modularité et Flexibilité des Espaces
Un des enjeux majeurs du projet était d’offrir un lieu évolutif, capable de s’adapter aux besoins changeants de l’entreprise. Studio HB a donc conçu des bureaux sous forme de modules préfabriqués, intégrés directement dans la structure du bâtiment.
- Ces modules peuvent être déplacés, agrandis ou réduits, selon l’évolution des effectifs et des nécessités de l’entreprise.
- Certains sont suspendus sur une mezzanine, permettant d’optimiser la hauteur sous plafond et de dégager plus de surface au sol pour le stockage.
- Un jeu de transparence avec des cloisons vitrées favorise la communication entre les espaces tout en maintenant une certaine séparation acoustique.
L’objectif est de créer une scénographie spatiale dynamique, où les bureaux semblent flotter dans l’espace industriel, en opposition avec la lourdeur des équipements stockés en contrebas.
4. Un Entrepôt Éco-Conçu et Performant
Dans une logique d’efficience énergétique et environnementale, plusieurs stratégies ont été mises en place :
- Isolation thermique optimisée avec des panneaux sandwich à haute performance.
- Récupération des eaux pluviales pour l’usage des sanitaires et de l’entretien des extérieurs.
- Ventilation naturelle et brise-soleil pour limiter la consommation énergétique liée à la climatisation.
- Éclairage LED et capteurs de présence pour réduire les dépenses énergétiques.
Le projet s’inscrit ainsi dans une démarche de sobriété architecturale et technique, favorisant une exploitation économe des ressources, en écho avec la mémoire agricole du site.
5. Conclusion : Un Entreposage Réinventé, entre Pragmatique et Identitaire
Avec ce projet, Studio HB propose une vision innovante du bâtiment industriel, où le stockage n’est plus seulement fonctionnel mais scénarisé, et où les espaces de bureaux dépassent leur rôle administratif pour devenir de véritables lieux de vie et d’échanges.
En intégrant une lecture sémiologique forte, l’architecture dialogue avec son passé agricole tout en affirmant une modernité inspirée du monde industriel. La matière, la lumière et la modularité sont ici les vecteurs d’un nouveau récit spatial, où chaque élément trouve sa place dans un équilibre entre efficacité, esthétique et confort de travail.


















